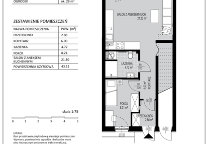
Nowe mieszkanie na sprzedaż 2 pokoje Borkowo, 43,11 m2, parter - nr C11
Oferta sprzedaży od Platforma Mieszkaniowa
gdański, Borkowo, ul. Poziomkowa

Główne cechy mieszkania
Ważne informacje
Mieszkanie 2 pokojowe
Inwestycja
Dostępne mieszkania w tej inwestycji
| Nazwa | Rzut | Pokoje | Powierzchnia | Piętro | Cena | Status |