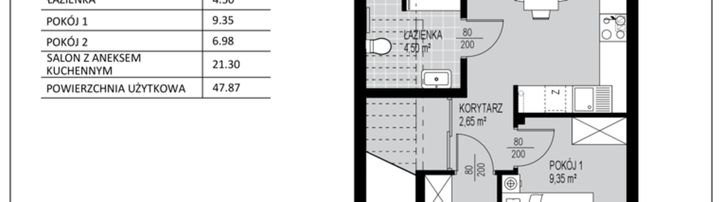
Nowe mieszkanie na sprzedaż 3 pokoje Borkowo, 47,87 m2, parter - nr C7
Oferta sprzedaży od Platforma Mieszkaniowa
Rezerwacjagdański, Borkowo, ul. Poziomkowa

Główne cechy mieszkania
Ważne informacje
Mieszkanie 3 pokojowe
Inwestycja
Dostępne mieszkania w tej inwestycji
| Nazwa | Rzut | Pokoje | Powierzchnia | Piętro | Cena | Status |