Nowe mieszkanie na sprzedaż 4 pokoje Bolszewo, 84,79 m2, parter - nr B15/L2
Oferta sprzedaży od Platforma Mieszkaniowa
wejherowski, Bolszewo, ul. Strażacka

Główne cechy mieszkania
Ważne informacje
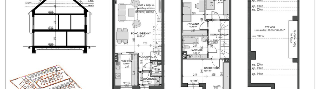
Mieszkanie 4 pokojowe
Inwestycja
Słoneczne Ogrody
pomorskie, wejherowski, Bolszewo
Niska, kameralna zabudowa, duża odległość między szeregami oraz od sąsiednich działek co zapewni mieszkańcom komfort w życiu codziennym oraz pozwoli cieszyć się ciszą i spokojem. Osiedle zlokalizowane w dzielnicy niskiej zabudowy jednorodzinnej w niewielkiej odległości od głównej arterii Bolszewa z pełną infrastrukturą niezbędną do codziennego życia. Architekci zaprojektowali funkcjonalny układ mieszkań z otwartą przestronną częścią dzienną na parterze z wyjściem na słoneczny ogród. Na piętrze wydzielono 3 przestronne sypialnie z dużymi oknami, które zapewnią doświetlenie pomieszczeń oraz łazienkę. Dodatkowa ogromna przestrzeń nie wliczona do powierzchni użytkowej została wygospodarowana na strychu nieużytkowym, którego najważniejszym atutem jest betonowy strop z dużym otworem dającym możliwość zamontowania pełnowymiarowych schodów pozwalające w pełni wykorzystać tą przestrzeń. Osiedle o wysokim standardzie wykończenia oferujące: -Duże okna dające dobrze doświetlone pomieszczenia -Okna 3 szybowe -Miejsce na 3 samochody dla każdego mieszkania z garażem (miejsce postojowe zewnętrzne, garaż i podjazd do garażu) -Miejsce postojowe na 2 samochody w mieszkaniach bez garaży -Ogrzewanie podłogowe w całym mieszkaniu (oprócz strychu) -Przestronne ogródki o słonecznej ekspozycji południowo zachodniej -Dachy dwuspadowe z dużą powierzchnią dla fotowoltaiki przykryte dachówką -Osiedle zamykane szlabanem -Wyjątkowa lokalizacja
Dostępne mieszkania w tej inwestycji
| Nazwa | Rzut | Pokoje | Powierzchnia | Piętro | Cena | Status |