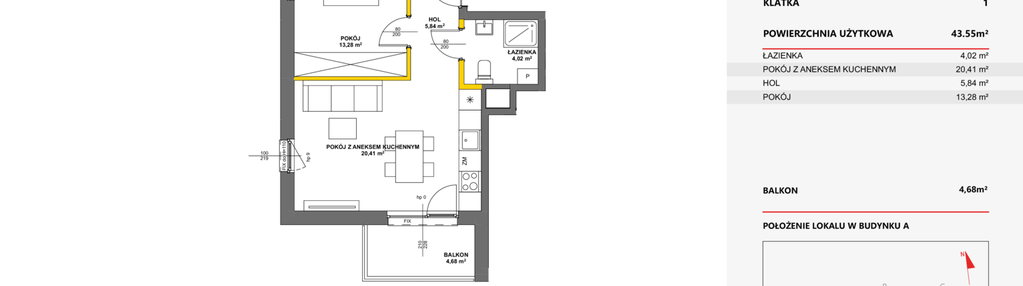
Nowe mieszkanie na sprzedaż 2 pokoje Julianów, 43,40 m2, 1 piętro - nr 8
Oferta sprzedaży od Grupa Victoria Dom
piaseczyński, Julianów, ul. Urbanistów 12

Główne cechy mieszkania
Ważne informacje
Mieszkanie 2 pokojowe
Dodatkowe informacje
Udogodnienia

Plac zabaw

Winda
Inwestycja
Miasteczko Julianów
mazowieckie, piaseczyński, Julianów
Miasteczko Julianów to nowe osiedle położone w malowniczym otoczeniu, powstające z myślą o osobach szukających odskoczni od dynamicznego życia w dużym mieście. Osiedle charakteryzuje się niską zabudową, która doskonale wkomponowuje się w zielone otoczenie, zapewniając mieszkańcom poczucie spokoju i komfortu. Lokalizacja zapewnia szybki i łatwy dostęp do centrum Piaseczna oraz wszystkich niezbędnych udogodnień miejskich. W okolicy znajdują się: przystanki autobusowe, ścieżki rowerowe, sklepy oraz przedszkole i szkoła. Osiedle składa się z 3 budynków w nowoczesnej architekturze, z łączną ilością 188 mieszkań o metrażach od 26m2 do 90m2, w funkcjonalnych układach od 1 – do 5 pokoi. Mieszkania oferujemy z ogródkami lub balkonami lub też z tarasem.
Dostępne mieszkania w tej inwestycji
| Nazwa | Rzut | Pokoje | Powierzchnia | Piętro | Cena | Status |