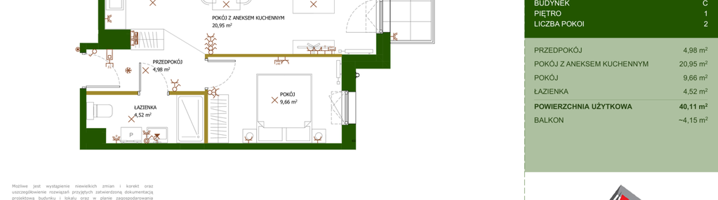
Nowe mieszkanie na sprzedaż 2 pokoje Julianów, 40,11 m2, 1 piętro - nr 14
Oferta sprzedaży od BUD-RIM Development
piaseczyński, Julianów, ul. Urbanistów

Główne cechy mieszkania
Ważne informacje
Mieszkanie 2 pokojowe
Dodatkowe informacje
Udogodnienia

Plac zabaw

Winda

Klimatyzacja
Inwestycja
Julianów Verde
mazowieckie, piaseczyński, Julianów
Julianów Verde – Styl życia w najlepszym wydaniu ul. Urbanistów, Julianów (k. Piaseczna) Julianów Verde to nowoczesna i przemyślana inwestycja mieszkaniowa, która powstaje w spokojnej, zielonej części Julianowa – zaledwie kilka minut od Piaseczna i w dogodnej odległości od Warszawy. Projekt zakłada budowę trzech czterokondygnacyjnych budynków, w których łącznie powstanie 144 mieszkania. W pierwszym etapie realizowany jest budynek z 43 lokalami mieszkalnymi – o funkcjonalnych rozkładach i powierzchniach dopasowanych do potrzeb zarówno singli, par, jak i rodzin z dziećmi. Nowoczesna architektura i komfort życia Bryły budynków zostały zaprojektowane w nowoczesnym, minimalistycznym stylu, z dbałością o detale i komfort mieszkańców. Ułożenie budynków w osi północ–południe zapewnia optymalne doświetlenie wnętrz o każdej porze dnia. Elewacje utrzymane są w stonowanej, naturalnej kolorystyce – dominuje biel, jasny beż oraz akcenty inspirowane drewnem. Ciemne balustrady balkonów stanowią elegancki kontrapunkt, który nadaje całości charakteru. Przestrzeń zaprojektowana z myślą o mieszkańcach Wszystkie budynki będą wyposażone w windy, a każde mieszkanie będzie posiadało klimatyzację w standardzie. Lokale na parterze dodatkowo otrzymają rolety zewnętrzne, zwiększające komfort i bezpieczeństwo. Na balkonach zastosowane zostaną płytki wentylowane, gwarantujące trwałość i estetykę wykończenia. Dla wygody mieszkańców zaprojektowano m.in.: • panele fotowoltaiczne wspierające zasilanie części wspólnych, • stację ładowania pojazdów elektrycznych, • miejsca postojowe dla gości, • plac zabaw dla dzieci, • wydzielone strefy do przechowywania rowerów Część podziemna budynków przeznaczona będzie na garaże i pomieszczenia techniczne, co pozwoli zachować estetykę przestrzeni wspólnych i zapewnić porządek na terenie osiedla.
Dostępne mieszkania w tej inwestycji
| Nazwa | Rzut | Pokoje | Powierzchnia | Piętro | Cena | Status |