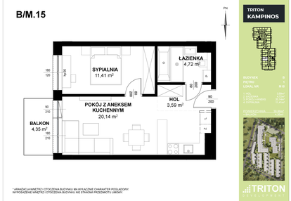
Nowe mieszkanie na sprzedaż 2 pokoje Łomna-Las, 39,86 m2, 1 piętro - nr B_M15
Oferta sprzedaży od Triton Development S.A.
mazowieckie, nowodworski, Łomna-Las, ul. Wiśniowa 5

Główne cechy mieszkania
Ważne informacje
Mieszkanie 2 pokojowe
Dodatkowe informacje
Udogodnienia

Wózkarnia

Plac zabaw

Basen

Korty tenisowe

Własny akwen wodny

Boisko

Winda

Sala fitness

Rowerownia
Przyroda

Park

Las

Rezerwat przyrody
Inwestycja
Triton Kampinos III
mazowieckie, nowodworski, Łomna-Las
Inwestycja Triton Kampinos to osiedle położone w bezpośrednim sąsiedztwie Puszczy Kampinoskiej. Bliskość Drogi Krajowej nr 7 sprawia, że jest to dogodna lokalizacja. Dojazd do Centrum Warszawy jest bardzo wygodny. Do Metra Młociny - 20 min. Na terenie o powierzchni 26 hektarów powstanie Triton Kampinos, nowoczesne osiedle z infrastrukturą handlowo - usługową. Pierwszy etap to 150 mieszkań oraz 50 segmentów.
Dostępne mieszkania w tej inwestycji
| Nazwa | Rzut | Pokoje | Powierzchnia | Piętro | Cena | Status |