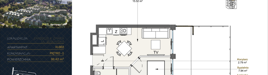
Nowe mieszkanie na sprzedaż 2 pokoje Zarzecze, 30,42 m2, parter - nr H.2
Oferta sprzedaży od Kombi Invest Sp. z o.o.
żywiecki, Zarzecze, ul. Żeglarska


Główne cechy mieszkania
Ważne informacje
Mieszkanie 2 pokojowe
Dodatkowe informacje
Udogodnienia

Basen

Usługi w budynku

Winda

Usługi concierge

Boisko

Plac zabaw

Rowerownia

Sauna

Klimatyzacja

Sala fitness
Przyroda

Jezioro

Las

Góry
Inwestycja

Laguna Beskidów
śląskie, żywiecki, Zarzecze
Laguna Beskidów to wyjątkowe osiedle mieszkalne o charakterze turystycznym. Idealne dla osób chcących inwestować w apartamenty na wynajem krótkoterminowy. Lokalizacja u podnóża gór Beskidy jednocześnie w drugiej linii brzegowej Jeziora Żywieckiego sprawia, że sezon turystyczny trwa u tutaj cały rok, co przekłada się na obłożenie najmu apartamentów. Wysoki standard budowy oraz bogata infrastruktura rekreacyjna osiedla dodaje prestiżu oraz gwarantuje solidną lokatę kapitału. Ponadto proponowany przez nas sprawdzony model biznesowy umożliwia bardzo wysoki zwrot z inwestycji. Atuty inwestycji: -Apartamenty sprzedawane jako lokale mieszkalne z pełną własnością w księdze wieczystej oraz udziałem w gruncie. -Możliwość wykończenia pod klucz w wysokim standardzie indywidualnym lub hotelowym wraz z wyposażeniem. -Kompleksowa obsługa najmu bez minimalnego czasu umowy, bez ograniczeń pobytu właścicielskiego. -Bogata infrastruktura turystyczna realizowana w ramach inwestycji: Wyspa na jeziorze z plażą i przystanią dla żaglówek, palmy, basen ze SPA, siłownie i sauny, recepcja, restauracje i widokowy bar na dachu, pole do mini golfa, wielofunkcyjne boisko, nowoczesny plac zabaw. -Bliski dostęp do licznych atrakcji turystycznych Lokalizacja Zarzecze to spokojna miejscowość zlokalizowana nad Jeziorem Żywieckim u podnóża pasma gór Beskidy. Dzięki bliskości drogi ekspresowej S1 dojazd jest bardzo wygodny. Liczne atrakcje turystyczne w najbliższej okolicy: -ponad 50 km tras narciarskich -ponad 80 km tras rowerowych -Żeglarstwo i kajakarstwo -Paddleboarding i sporty wodne -Wędkarstwo rekreacyjne
Dostępne mieszkania w tej inwestycji
Nazwa | Rzut | Pokoje | Powierzchnia | Piętro | Cena | Status |