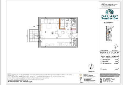
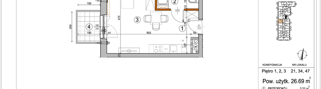
Nowe mieszkanie na sprzedaż 1 pokój Warszawa Rembertów, 26,69 m2, 2 piętro - nr L1-34
Oferta sprzedaży od Park Leśny Rembertów
Warszawa, Rembertów, Kawęczyn-Wygoda, ul. Chełmżyńska 198 (9km od centrum Warszawy)

Główne cechy mieszkania
Ważne informacje
Mieszkanie 1 pokojowe
Dodatkowe informacje
Udogodnienia

Plac zabaw

Winda
Przyroda

Park

Rezerwat przyrody

Las
Inwestycja
Dostępne mieszkania w tej inwestycji
| Nazwa | Rzut | Pokoje | Powierzchnia | Piętro | Cena | Status |