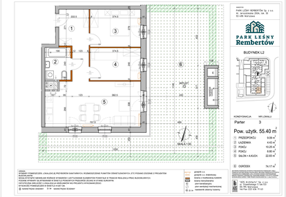
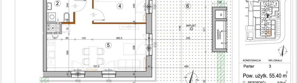
Nowe mieszkanie na sprzedaż 3 pokoje Warszawa Rembertów, 55,40 m2, parter - nr L2-3
Oferta sprzedaży od Park Leśny Rembertów
Warszawa, Rembertów, Kawęczyn-Wygoda, ul. Chełmżyńska 198 (9km od centrum Warszawy)

Główne cechy mieszkania
Ważne informacje
Mieszkanie 3 pokojowe
Dodatkowe informacje
Udogodnienia

Plac zabaw

Winda
Przyroda

Las

Park

Rezerwat przyrody
Inwestycja
Dostępne mieszkania w tej inwestycji
| Nazwa | Rzut | Pokoje | Powierzchnia | Piętro | Cena | Status |