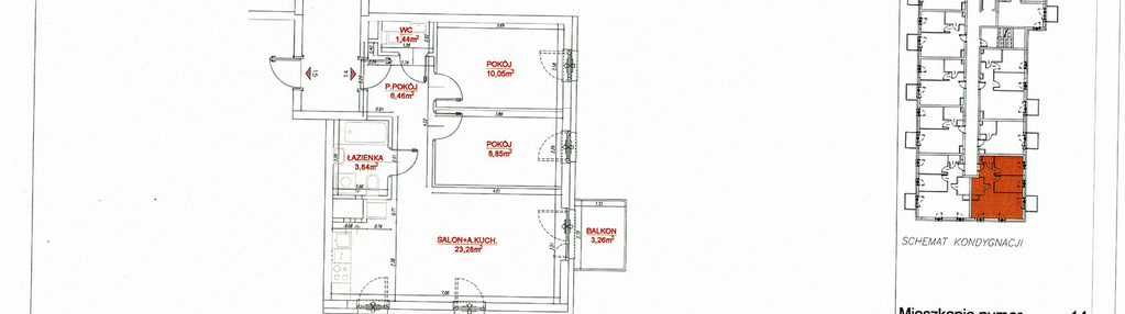
Nowe mieszkanie na sprzedaż 3 pokoje Warszawa Rembertów, 53,86 m2, 1 piętro - nr J1-14
Oferta sprzedaży od Park Leśny Rembertów
Warszawa, Rembertów, Kawęczyn-Wygoda, ul. Chełmżyńska (8,9km od centrum Warszawy)

Główne cechy mieszkania
Ważne informacje
Mieszkanie 3 pokojowe
Dodatkowe informacje
Udogodnienia

Patio / Dziedziniec

Plac zabaw
Przyroda

Las
Inwestycja
Park Leśny Rembertów etap VIII
mazowieckie, Warszawa, Rembertów, Kawęczyn-Wygoda
Park Leśny Rembertów to kameralna inwestycja położona na obrzeżach Warszawy, w Rembertowie, przy ulicy Chełmżyńskiej. Głównym założeniem osiedla jest stworzenie bezpiecznej przestrzeni, w której mieszkańcy i goście poczują spokój i harmonię. To właśnie tu jesteś daleko od zgiełku i pośpiechu miasta i jednocześnie blisko zieleni, natury oraz wszelkich niezbędnych sklepów, usług i połączeń komunikacyjnych z Centrum Warszawy! • Natura(lnie) tuż za oknem - osiedle graniczące bezpośrednio z Lasem Rembertowskim, • Kameralna zabudowa i infrastruktura przyjazna mieszkańcom - zielone tereny zabaw dla dzieci i miejsca sprzyjające integracji sąsiedzkiej przy każdym budynku, • Szeroki wybór mieszkań - metraże odpowiadające singlom, parom i rodzinom z dziećmi, • Wygodne połączenie komunikacyjne z Centrum Warszawy - przystanek autobusowy ZTM tuż przy inwestycji zapewnia wygodną przesiadkę w SKM, tramwaje i Metro Trocka, oraz z trasami wylotowymi S8, • Bezpieczeństwo - teren zamknięty z kontrolą dostępu tylko dla mieszkańców, • Sklepy i usługi - podstawowe zakupy spożywcze zrobisz nie opuszczając osiedla, • Przedszkole i żłobek na terenie osiedla. Do każdego mieszkania zlokalizowanego na parterze przynależą także prywatne zielone ogórki o powierzchniach od 20 m2 do 110 m2. Przyszli mieszkańcy mają do wyboru zakup miejsc postojowych zlokalizowanych w garażu podziemnym lub naziemnym. Całość inwestycji składać się będzie z 10 etapów, w których łącznie znajdzie się około 1.300 mieszkań. Inwestycja oddana do użytkowania wiosną 2023 roku. Atuty: osiedle zamknięte, place zabaw dla dzieci, starannie zaaranżowana zieleń wokół budynków, bliskość lasu rembertowskiego, wysoka jakość wykończenia oraz nowoczesny design.
Dostępne mieszkania w tej inwestycji
| Nazwa | Rzut | Pokoje | Powierzchnia | Piętro | Cena | Status |