Nowe mieszkanie na sprzedaż 4 pokoje Warszawa Białołęka, 78,94 m2, 2 piętro - nr B.2.20
Oferta sprzedaży od Muub Development Sp. z o.o.
PlanowanaWarszawa, Białołęka, Kobiałka, ul. Długorzeczna (14,3km od centrum Warszawy)

Główne cechy mieszkania
Ważne informacje
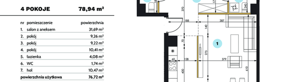
Mieszkanie 4 pokojowe
Dodatkowe informacje
Udogodnienia

Patio / Dziedziniec

Winda

Rowerownia

Własna kotłownia

Wózkarnia

Plac zabaw
Przyroda

Park
Inwestycja
Osiedle Tatarak
mazowieckie, Warszawa, Białołęka, Kobiałka
Osiedle Tatarak to siedem trzypiętrowych budynków, w których znajdziesz 308 mieszkań o powierzchniach od 26 m2 do 85 m2. Zrealizujemy je w dwóch etapach. Pierwszy z nich wybudujemy do końca 2023 roku. Osiedle Tatarak powstaje na bazie dobrych rozwiązań wprowadzonych podczas projektowania Osiedla Przedwiośnie. Tworzymy je razem z pracownią S.A.M.I. Architekci. Nasz zespół nieustannie korzysta z wiedzy socjologów, urbanistów, projektantów wizualnych i specjalistów od jakości życia w mieście. Zatrudniliśmy nawet niezależnego konsultanta, który na każdym etapie projektowania przypominał nam o wszystkich tych szczegółach, które odróżniają dobre osiedle od jego imitacji. Z równą troską podeszliśmy do kwestii technologii budowania. Wyróżnia nas odwaga w sięganiu po nowoczesne rozwiązania, które dają lepszą kontrolę nad standardem wykonania kluczowych elementów i umożliwiają realizację koncepcji zrównoważonego i energooszczędnego budownictwa. Dlatego też Osiedle Tatarak budujemy w technologii wykorzystującej elementy prefabrykacji. Skorzystamy z gotowych, realizowanych na nasze zamówienie, ścian zewnętrznych i wewnętrznych, płyt stropowych oraz prefabrykowanych balkonów i schodów. Zapewni to ich identyczną, wysoką trwałość i wysoki poziom bezpieczeństwa, poświadczony europejskimi certyfikatami. Elewacja zostanie wykonana z betonu o parametrach zbliżonych do cenionego betonu architektonicznego. Ściany działowe w mieszkaniach postawimy przy użyciu specjalnych minidźwigów, które zapewniają szybszą realizację i większą dokładność. Parking podziemny wybudujemy natomiast w technologii tzw. białej wanny, zapewniając tym samym szczelność garażu na lata.
Dostępne mieszkania w tej inwestycji
| Nazwa | Rzut | Pokoje | Powierzchnia | Piętro | Cena | Status |