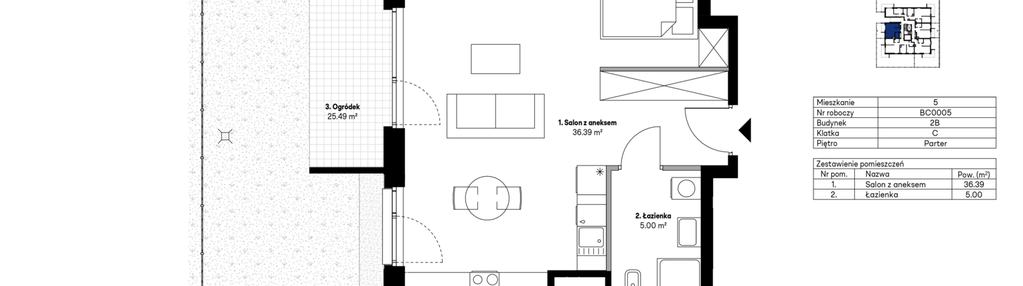
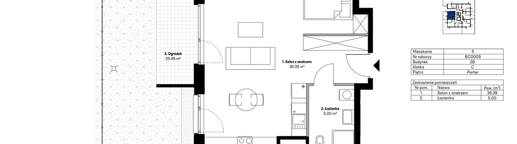
Nowe mieszkanie na sprzedaż 1 pokój Warszawa Wola, 41,31 m2, parter - nr BC0005
Oferta sprzedaży od Skanska Residential Development Poland Sp. z o.o.
Warszawa, Wola, Czyste, ul. Kolejowa (2,6km od centrum Warszawy)

Główne cechy mieszkania
Ważne informacje
Mieszkanie 1 pokojowe
Dodatkowe informacje
Udogodnienia

Inteligentny dom
Inwestycja
NU2 Warszawa Wola
mazowieckie, Warszawa, Wola, Czyste
Mieszkania NU2 znajdują się na ulicy Kolejowej, w jednej z popularniejszych dzielnic Warszawy – Woli. Wchodzi w skład osiedla NU, liczącego w sumie 136 mieszkań o metrażach od 28,4 m2 do 96,0 m2. Każde z nich ma balkon, taras lub ogródek, w których można bez reszty oddać się letniemu relaksowi. Dostępne są też mieszkania z loggią, idealną do tego, by stworzyć ogród zimowy lub całoroczną mini-szklarnię – z własnymi owocami, warzywami czy kwiatami. Doskonała jakość, ciekawe rozwiązania architektoniczne i dbałość o każdy szczegół – NU2 to inwestycja, która sprawi, że docenisz życie w mieście. To kolejny etap osiedla NU – pełnego innowacji i nowoczesnych rozwiązań.
Dostępne mieszkania w tej inwestycji
| Nazwa | Rzut | Pokoje | Powierzchnia | Piętro | Cena | Status |