Nowe mieszkanie na sprzedaż 3 pokoje Czarnochowice, 66,25 m2, 1 piętro - nr 51A.3
Oferta sprzedaży od Platforma Mieszkaniowa
wielicki, Czarnochowice, ul. Dębowa 51

Główne cechy mieszkania
Ważne informacje
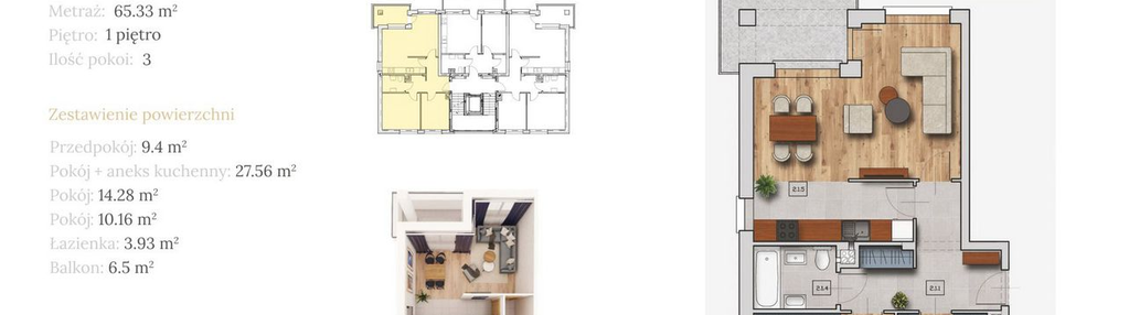
Mieszkanie 3 pokojowe
Dodatkowe informacje
Udogodnienia

Winda

Własna kotłownia

Klimatyzacja

Plac zabaw
Przyroda

Staw

Park
Inwestycja
Dębowa 51
małopolskie, wielicki, Czarnochowice
4 kameralne budynki mieszkalne, każdy zaledwie z 10 mieszkaniami. Wszystkie budynki wyposażone są w windę, komórki lokatorskie oraz przestronne balkony, tarasy i loggie. Dodatkowo, dostępne są garaże, a wokół budynków znajduje się wiele zieleni i miejsc parkingowych. Dogodne usytuowanie inwestycji pozwala na szybki dostęp zarówno do centrum Krakowa, jak i do węzła autostrady A4 oraz obwodnicy.
Dostępne mieszkania w tej inwestycji
| Nazwa | Rzut | Pokoje | Powierzchnia | Piętro | Cena | Status |