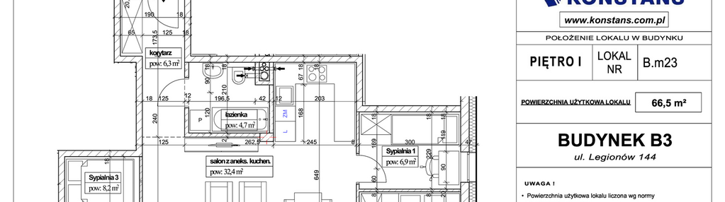
Nowe mieszkanie na sprzedaż 4 pokoje Wołomin, 66,50 m2, 1 piętro - nr B3.23
Oferta sprzedaży od PHU KONSTANS Sp. z o.o.
Wołomin, ul. Legionów 142A

Główne cechy mieszkania
Opis nieruchomości o powierzchni 66,50 m2
Mieszkanie w inwestycji: Osiedle Zielony Zakątek- etap II
Mieszkanie 4- pokojowe o pow. 66,50m2 usytuowane na I piętrze od południowego- wschodu. Składa się z salonu z aneksem kuchennym, trzech sypialni, korytarza i łazienki. Do tego mieszkania przynależy balkon o pow. 3,6m2.
Ważne informacje
Mieszkanie 4 pokojowe
Dodatkowe informacje
Udogodnienia

Winda

Plac zabaw
Przyroda

Rezerwat przyrody

Las
Inwestycja
Osiedle Zielony Zakątek- etap II
mazowieckie, wołomiński, Wołomin
Osiedle Zielony Zakątek zlokalizowane jest w Wołominie w rejonie ul. Legionów i ul. Zielonej. Osiedle usytuowane jest w spokojnej okolicy, w bliskim sąsiedztwie Rezerwatu Przyrody „Grabicz” oraz w sąsiedztwie domów jednorodzinnych, co czyni z osiedla świetne miejsce do mieszkania i odpoczynku. Nasza inwestycja składała się będzie z 7 budynków mieszkalnych wielorodzinnych, które będą budowane i sprzedawane w kilku etapach. Aktualnie w sprzedaży mamy inwestycję pod nazwą „Osiedle Zielony Zakątek- etap II”, w której skład wchodzą dwa 3- piętrowe budynki mieszkalne wielorodzinne (budynek B2 i budynek B3). Łącznie w II etapie w sprzedaży jest 116 lokali mieszkalnych. Dodatkowo informujemy, że przy zakupie mieszkania jest możliwość zakupu miejsca postojowego w garażu podziemnym.
Dostępne mieszkania w tej inwestycji
| Nazwa | Rzut | Pokoje | Powierzchnia | Piętro | Cena | Status |