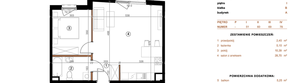
Nowe mieszkanie na sprzedaż 2 pokoje Wołomin, 46,69 m2, 1 piętro - nr A51
Oferta sprzedaży od Żerański Development
Wołomin, ul. Lipińska

Główne cechy mieszkania
Ważne informacje
Mieszkanie 2 pokojowe
Dodatkowe informacje
Udogodnienia

Plac zabaw

Winda
Inwestycja
Dostępne mieszkania w tej inwestycji
| Nazwa | Rzut | Pokoje | Powierzchnia | Piętro | Cena | Status |