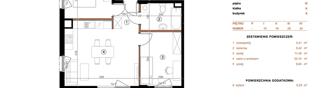
Nowe mieszkanie na sprzedaż 3 pokoje Wołomin, 53,70 m2, 3 piętro - nr A26
Oferta sprzedaży od Żerański Development
Wołomin, ul. Lipińska

Główne cechy mieszkania
Ważne informacje
Mieszkanie 3 pokojowe
Dodatkowe informacje
Udogodnienia

Plac zabaw

Winda
Inwestycja
Dostępne mieszkania w tej inwestycji
| Nazwa | Rzut | Pokoje | Powierzchnia | Piętro | Cena | Status |