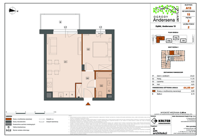
Nowe mieszkanie na sprzedaż 2 pokoje Ząbki, 44,09 m2, 2 piętro - nr 15A
Oferta sprzedaży od Kalter Nieruchomości Sp. z o.o.
Ząbki, ul. Andersena 13


Główne cechy mieszkania
Ważne informacje
Mieszkanie 2 pokojowe
Dodatkowe informacje
Udogodnienia

Plac zabaw

Winda

Rowerownia
Inwestycja

Dostępne mieszkania w tej inwestycji
Nazwa | Rzut | Pokoje | Powierzchnia | Piętro | Cena | Status |