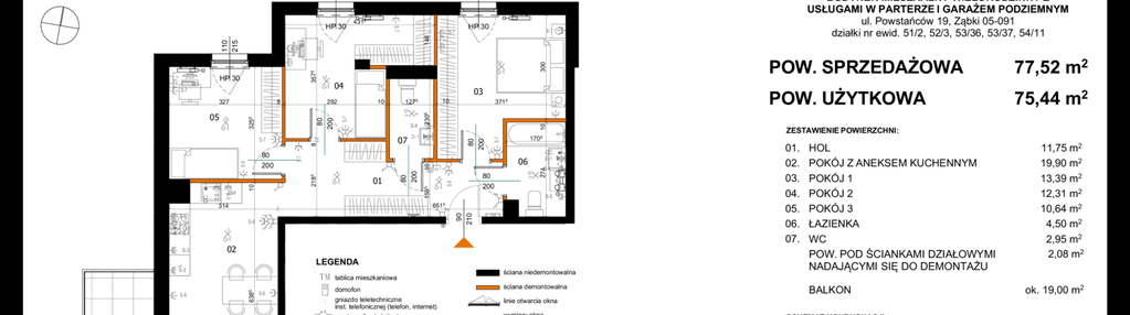
Nowe mieszkanie na sprzedaż 4 pokoje Ząbki, 75,58 m2, 1 piętro - nr 1
Oferta sprzedaży od Toscany Invest Małecki Wiewiór Spółka Komandytowa
Ząbki, ul. Powstańców 19

Główne cechy mieszkania
Ważne informacje
Mieszkanie 4 pokojowe
Dodatkowe informacje
Udogodnienia

Usługi w budynku

Winda
Przyroda

Park

Las
Inwestycja
Powstańców Residence
mazowieckie, wołomiński, Ząbki
Kameralnie i w zielonej okolicy Powstańców Residence to inwestycja, która łączy wygodę życia w mieście z bliskością natury. Zlokalizowana w spokojnej okolicy, tuż obok Lasu Rembertowskiego, stanowi idealne miejsce dla osób szukających odpoczynku od miejskiego zgiełku. Jednocześnie, zapewnia wygodę codziennego życia w dobrze skomunikowanej przestrzeni. W pobliżu inwestycji znajdują się liczne tereny spacerowe, które zachęcają do aktywności na świeżym powietrzu. Dodatkowym atutem inwestycji jest bliskość ważnych punktów usługowych, takich jak sklepy, szkoły, przedszkola czy przychodnie. Wygodny dostęp do komunikacji miejskiej sprawia, że Powstańców Residence to doskonałe miejsce do życia, łączące spokój i komfort z miejską infrastrukturą. Komfort i funkcjonalność Oferujemy 48 lokali w zróżnicowanych metrażach, od 39 m² do 78 m², w tym mieszkania 2-, 3- i 4-pokojowe. Każde z mieszkań zostało starannie zaplanowane, by spełniało potrzeby zarówno singli, jak i rodzin. Większość mieszkań wyposażona jest w przestronne balkony lub tarasy – ich powierzchnia waha się od 6 m² do 19 m² dla balkonów i od 6,5 m² do 12,5 m² dla tarasów. Wygoda i bezpieczeństwo Z myślą o wygodzie mieszkańców, Powstańców Residence oferuje rozbudowaną infrastrukturę. Podziemny garaż zapewni komfortowe warunki do parkowania. Dla rowerzystów przewidziano boksy rowerowe o powierzchni od 1,17 m² do 4,5 m². Dodatkowo budynek wyposażony jest w nowoczesny system monitoringu CCTV oraz wideodomofony, co zwiększa poczucie bezpieczeństwa. Każde mieszkanie w standardzie zawiera wentylację mechaniczną oraz światłowód, co zapewni mieszkańcom szybki internet i odpowiednią cyrkulację powietrza w każdym mieszkaniu.
Dostępne mieszkania w tej inwestycji
| Nazwa | Rzut | Pokoje | Powierzchnia | Piętro | Cena | Status |