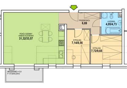
Mieszkanie na sprzedaż 3 pokoje Zielona Góra, 58,58 m2, 4 piętro
Oferta sprzedaży od Park Home
Zielona Góra, ul. Łężyca-Inwestycyjna
526 634 zł
8 990 zł/m2

Główne cechy mieszkania
Opis nieruchomości o powierzchni 58,58 m2
Prezentujemy Państwu kolejny etap inwestycji Osiedla NIWA w Łężycy. Nowo powstający budynek z 2, 3, 4, pokojowymi mieszkaniami o powierzchni od 31,3 m2 do 66,6 m2 wraz z dużymi balkonami.
Istnieje możliwość wykupienia miejsca parkingowego w garażu podziemnym, natomiast komórki lokatorskie są dołączone do każdego mieszkania.
Mieszkania w standardzie deweloperskim wykończone wysokiej klasy materiałami. Budynek wyposażony jest w windę od poziomu -1 oraz drzwi antywłamaniowe. Wejście do części wspólnych mają wyłącznie mieszkańcy.
Pełna infrastruktura osiedla - chodniki, drogi dojazdowe, miejsca parkingowe, place zabaw.
Cicha i spokojna okolica. Osiedle otoczone zielenią, oferujące jednocześnie dogodność miejskich atrakcji. Wygodny dojazd do centrum Zielonej Góry – 10 minut. W pobliżu przystanki autobusowe, apteka, żłobek i przedszkole oraz liczne usługi handlowe (w tym sklep Dino i Biedronka).
Każde mieszkanie wyposażone jest w system ISM (indywidualne stacje mieszkaniowe), który zapewnia oszczędne i efektywne wykorzystanie energii cieplnej. Ciepło na potrzeby ogrzewania i przygotowania c.w.u. jest pobierane dopiero w momencie faktycznego zapotrzebowania na nie. Odpowiedni układ sterowania daje możliwość realizacji funkcji ogrzewania przez cały rok. Dodatkowy czynnik ekonomiczny wynika z faktu regulacji i dostosowania poboru ciepła i przygotowania c.w.u. do bieżącego zapotrzebowania.
Mieszkania oddawane są do samodzielnego wykończenia m.in. w zakresie malowania ścian i sufitów, gładzie, okładzin ścian i podłóg, drzwi wewnętrznych oraz białego montażu.
Koniec inwestycji planowany jest na 30.04.2024 r. Klucze do mieszkań dostępne po odbiorach w maju 2024 r.
Kupujący nie płaci podatku PCC i prowizji dla biura!!!
W trosce o najwyższą jakość obsługi oraz bezpieczeństwo Klientów przed prezentacją wymagana jest wizyta w biurze celem podpisania dokumentów dotyczących prezentacji nieruchomości.
---
Potrzebujesz finansowania zakupu?
Park Home oferuje kompleksową obsługę klienta. Nasi Eksperci ds. kredytów hipotecznych pomogą bezpłatnie w załatwieniu wszystkich formalności niezbędnych do uzyskania kredytu.
---
Treść niniejszego ogłoszenia nie stanowi oferty handlowej w rozumieniu Kodeksu Cywilnego. Treść ma charakter informacyjny i zalecamy ich osobistą weryfikację. Kontaktując się z biurem Klient wyraża zgodę na przetwarzanie danych osobowych zgodnie z przepisami ustawy z dnia 29 sierpnia 1997 roku o ochronie danych osobowych / Dz.U.Nr. 133 poz. 883/. Klientowi przysługuje prawo do wglądu do swoich danych osobowych i ich aktualizacji