Dom na sprzedaż 5 pokoi Bojano, 162,44 m2, działka 239 m2
Oferta sprzedaży od White Wood Nieruchomości
wejherowski, Bojano
949 000 zł
5 842 zł/m2

Główne cechy domu
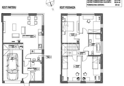
Opis nieruchomości o powierzchni 162,44 m2
Bliźniak z 4 sypialniami, garaż i ogród i zieleń
Najważniejsze atuty inwestycji – Domy w Bojanie
- kameralna zabudowa jednorodzinna – nowoczesne domy z ogrodem i garażem
- spokojna lokalizacja w otoczeniu zieleni – idealna dla rodzin i osób ceniących naturę
- funkcjonalny projekt z dużymi przeszkleniami i miejscem na kominek
- szybki dojazd do Trójmiasta – Gdynia w 15 minut, Gdańsk w 25 minut
- bliskość lasów, łąk i jeziora – idealne miejsce na spacery, rower i relaks
- pełna infrastruktura w zasięgu kilku minut jazdy – szkoła, przedszkole, sklepy, przychodnia
- termin odbioru: IV kwartał 2025
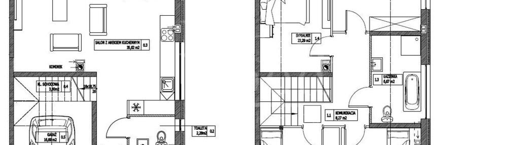
Parametry domu
- powierzchnia użytkowa: 133 m²
- kondygnacje: 2
- układ:
- 4 sypialnie na piętrze
- przestronny salon z wyjściem do ogrodu i miejscem na kominek
- otwarta kuchnia
- 2 łazienki (toaleta na parterze + duża łazienka z wanną i prysznicem na piętrze)
- pralnia z kotłownią
- wiatrołap z przejściem do garażu
- garaż jednostanowiskowy w bryle budynku
- prywatny ogród
- stan deweloperski
Standard wykończenia
- ogrzewanie: piec gazowy + ogrzewanie podłogowe w całym domu
- energooszczędne rozwiązania zapewniające komfort cieplny i niższe rachunki
- duże przeszklenia zapewniające naturalne doświetlenie wnętrz
- nowoczesna bryła budynku z funkcjonalnym układem pomieszczeń
Lokalizacja – Bojano
- dynamicznie rozwijająca się dzielnica o niskiej zabudowie jednorodzinnej
- 5 minut samochodem do:
- szkoły podstawowej
- przedszkola
- marketów i lokalnych sklepów
- przychodni
- tylko 3 km do węzła Trasy Kaszubskiej – szybki dostęp do całego Trójmiasta
- w otoczeniu lasy, łąki i jezioro – idealne na aktywny wypoczynek
Informacje dodatkowe
- domy dostępne w stanie deweloperskim
- możliwość aranżacji wnętrz według własnych potrzeb
- idealne miejsce dla rodzin z dziećmi, osób pracujących zdalnie lub szukających spokoju blisko miasta
Zapraszam do kontaktu po więcej informacji- promocja cenowa ograniczona czasowo
Przedstawione powyżej propozycje nie stanowią oferty handlowej w rozumieniu przepisów prawa, lecz mają charakter informacyjny. Wszelkie dane dotyczące nieruchomości uzyskano na podstawie oświadczeń właściciela.
Zespół White Wood dokłada starań, aby każda z ofert była rzetelnie sprawdzona i aktualna.
Oferta wysłana z programu dla biur nieruchomości ASARI CRM