Nowy dom na sprzedaż 5 pokoi Gdynia Wielki Kack, 140,10 m2 - nr D2
Oferta sprzedaży od Pomorskie Domy
Gdynia, Wielki Kack, ul. Źródło Marii (6,8km od centrum Gdyni)

Główne cechy domu
Ważne informacje
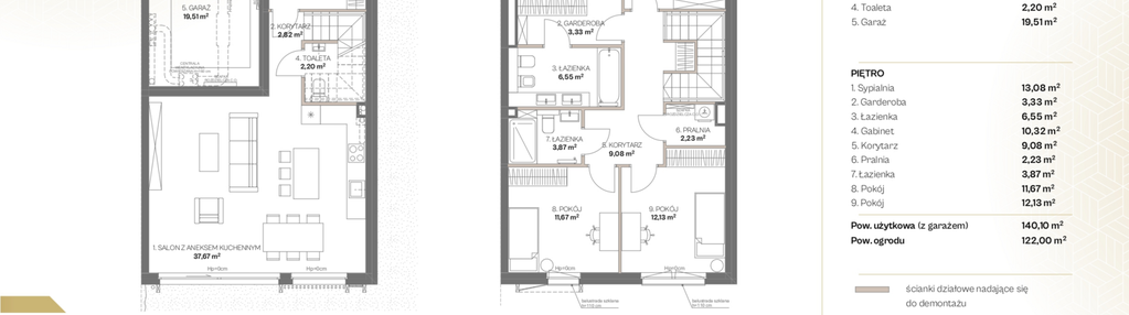
Dom i działka
Dodatkowe informacje
Przyroda

Park

Las
Inwestycja
Domy u Źródła Marii
pomorskie, Gdynia, Wielki Kack
Domy u Źródła Marii to luksusowe, zamknięte osiedle, które oferuje 16 domów szeregowych oraz 4 domy w zabudowie bliźniaczej, zlokalizowane w prestiżowej gdyńskiej dzielnicy Wielki Kack. Inwestycja łączy nowoczesną architekturę z najwyższymi standardami komfortu i elegancji, a także szereg ekologicznych rozwiązań, które zapewniają oszczędności i wygodę na co dzień. Wszystkie domy zostały wzniesione z materiałów najwyższej jakości – elewacje zdobi naturalna cegła klinkierowa, a dachy pokrywa elegancka dachówka. Dekoracyjne panele na elewacjach dodają ciepła, a okna tarasowe typu przesuwnego wpuszczają do wnętrz naturalne światło. Wnętrza zaprojektowano z dbałością o każdy detal: szerokie blaty w kuchniach, szlachetne wykończenia w łazienkach i miękkie materiały w sypialniach, które zapewniają mieszkańcom poczucie komfortu i luksusu. Domy u Źródła Marii to przestronność i nowoczesność, w połączeniu z rozwiązaniami, które zapewniają pełną niezależność energetyczną i komfort przez cały rok. Osiedle wyposażono w gruntowe pompy ciepła, rekuperację oraz ogrzewanie podłogowe w każdym pomieszczeniu, co wpływa na oszczędności i komfort życia. To również przestrzeń, w której mieszkańcy mogą cieszyć się pełną obsługą, co zapewnia im wygodę i eliminuje konieczność angażowania się w prace konserwacyjne. Osiedle o powierzchni ponad 3000 m2 zostało zaprojektowane z myślą o wypoczynku i integracji mieszkańców, oferując im rozległe tereny zielone, w tym przestrzeń do jogi, relaksu oraz rekreacji w pobliżu malowniczego potoku. Zaletą osiedla jest także jego zamknięty charakter – tereny wspólne są dostępne tylko dla mieszkańców, co zapewnia prywatność oraz poczucie bezpieczeństwa. Osiedle jest monitorowane, co dodatkowo podkreśla komfort i spokój codziennego życia. Lokalizacja inwestycji łączy spokojne, zielone otoczenie z łatwym dostępem do miejskich udogodnień. W pobliżu znajduje się historyczny potok, a sama dzielnica zachowuje zabytkowy charakter, co sprawia, że to idealne miejsce do życia dla osób ceniących zarówno bliskość natury, jak i udogodnienia współczesnego miasta. Domy u Źródła Marii to przestrzeń, która odpowiada na potrzeby osób szukających harmonii między nowoczesnym stylem życia a naturą, oferując jednocześnie komfort i wygodę na najwyższym poziomie.
Dostępne domy w tej inwestycji
| Nazwa | Rzut | Pokoje | Powierzchnia | Piętra | Cena | Status |