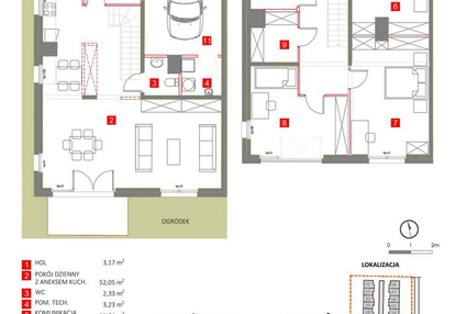
Nowy dom na sprzedaż 4 pokoje Kąty Wrocławskie, 150,36 m2 - nr 13
Oferta sprzedaży od Platforma Mieszkaniowa
RezerwacjaKąty Wrocławskie, ul. Bazyliowa 4

Główne cechy domu
Ważne informacje
Dom i działka
Inwestycja
Słoneczny Zakątek
dolnośląskie, wrocławski, Kąty Wrocławskie
Wyjątkowy projekt domów w zabudowie szeregowej, położony w zielonej części Kątów Wrocławskich. W ramach inwestycji powstało 38 domów jednorodzinnych z garażami, o powierzchniach od 133 m² do 153 m². Każdy z nich został zaprojektowany z myślą o funkcjonalności i wygodzie przyszłych mieszkańców – przestronne wnętrza, dobrze doświetlone salony i przemyślane układy pomieszczeń tworzą idealne warunki do życia. Jednym z największych atutów osiedla będą piękne, prywatne ogrody – ich powierzchnie wynoszą od 90 m² do ,,ponad 320 m², co pozwoli cieszyć się przestrzenią i bliskością natury każdego dnia. • duże ogródki • garaże • poddasza gratis
Dostępne domy w tej inwestycji
| Nazwa | Rzut | Pokoje | Powierzchnia | Piętra | Cena | Status |