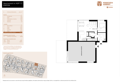
Nowe dom na sprzedaż 5 pokoi Kraków Podgórze Duchackie, 101,03 m2 - nr A29
Oferta sprzedaży od Hammak
Kraków, Podgórze Duchackie, ul. Kosocicka 112-114 (7,6km od centrum Krakowa)

Główne cechy domu
Ważne informacje
Dom i działka
Dodatkowe informacje
Udogodnienia

Klimatyzacja
Przyroda

Park

Las

Rezerwat przyrody
Inwestycja
Kosocicka Ambient
małopolskie, Kraków, Podgórze Duchackie
KOSOCICKA AMBIENT to osiedle 24 budynków jednorodzinnych dwulokalowych. Obiekty dzielą się na trzy podstawowe typy, zróżnicowane pod względem powierzchni dodatkowych takich jak tarasy czy układ ogrodu, a w każdym z nich znajdują się dwa lokale mieszkalne o powierzchni użytkowej ok. 100 m2. Każdy z lokali mieszkalnych na terenie inwestycji jest dwupoziomowy i posiada dostęp do ogrodu – natomiast tylko wybrane posiadają dodatkowo taras na pierwszym piętrze. Nietypowe układy budynków oraz ich wzajemne, nieregularne położenie tworzy naturalny układ – stworzona została struktura, która wpasowała się w istniejący krajobraz i uwarunkowania przyrodnicze. Dzięki temu osiedle zyskuje bardziej złożony rytm przestrzenny, lepsze wkomponowanie w otoczenie oraz większy komfort użytkowników, przy jednoczesnym utrzymaniu spójnej estetyki całej zabudowy. Perspektywa ciągle się zmienia – zamiast jednego osiowego widoku są krótkie kadry, w których domy co chwilę „zasłaniają” i „odkrywają” kolejne fragmenty zieleni. Niezwykle wygodne do aranżacji układy mieszkań są wynikiem starannie przemyślanej koncepcji architektonicznej a duże przeszklenia pozwolą na idealne doświetlenie i niezakłócony widok na przyrodę użytku ekologicznego Słona Woda. Salony znajdują się na parterze otwierają się na ogród wysokimi, przesuwnymi witrynami – szkło biegnie niemal od stropu po posadzkę, zapewniając kontakt wnętrza z zielenią. Na piętrach znajdziemy poziome, panoramiczne okna a w części lokali przestronne tarasy. Układ osiedla został przemyślany tak, aby pozostawić jak najwięcej drzew rosnących na terenie inwestycji. Przewidziano również dodatkowe nasadzenia oraz tarasy i stropodachy zielone – to co widać na naszych wizualizacjach jest rzeczywistym projektem gospodarki zielenią. Każdy z lokali mieszkalnych wyposażony będzie w indywidualną pompę ciepła oraz podejście instalacyjne pod instalacje fotowoltaiczne na dachu. Ogrzewanie podłogowe oraz rekuperacja z odzyskiem ciepła zapewnią komfortowe warunki termiczne. Dla każdego z mieszkań przewidziano jedno miejsce postojowe w garażu oraz możliwość zaparkowania drugiego samochodu na podjeździe. Woda deszczowa odprowadzana będzie do zbiorników i wykorzystywana do podlewania ogrodów. Nasza oferta obejmuje 48 dwupoziomowych apartamentów – każdy z nich jest 5 – pokojowym mieszkaniem z dwoma łazienkami, ogrodem i dodatkowym garażem. Wybrane apartamenty posiadają dostęp do tarasu na pierwszym piętrze. Lokale mieszkalne będą oddawane do użytku w stanie deweloperskim obejmującym między innymi: • Wylewki cementowe • Tynki gipsowe • Stolarkę aluminiową (okna uchylne z kontaktronami, jedno okno w lokalu typu HS); • Ogrzewanie podłogowe zasilane pompą ciepła, • Instalację wentylacji z odzyskiem ciepła (rekuperacja), • Instalację alarmową w zakresie okablowania kontaktronów, • Przyłącze internetowe do każdego lokalu mieszkalnego, • Rozprowadzenie instalacji pod montaż klimatyzacji. Dodatkowo: • Przygotowanie pod instalację fotowoltaiczną w formie peszla z wyjściem na dach doprowadzonego do rozdzielni głównej, • Możliwość podlewania ogródka wodą deszczową Wysokość pomieszczeń: od 265 cm do 336 cm Miejsca postojowe Wszystkie lokale mieszkalne będą posiadać miejsca postojowe w garażach (samodzielnych lub wbudowanych w bryłę budynku). Dodatkowo przewidziano możliwość parkowania na podjazdach oraz w innych wyznaczonych miejscach. Ogrody Wszystkie lokale mieszkalne posiadać będą dostęp do samodzielnych ogrodów o zróżnicowanej powierzchni – od 70m2 do 280m2. Ogródki przeznaczone będą do wyłącznej dyspozycji Właścicieli a ich areał wydzielony zostanie ogrodzeniem.
Dostępne mieszkania w tej inwestycji
| Nazwa | Rzut | Pokoje | Powierzchnia | Piętro | Cena | Status |