Nowy dom na sprzedaż 5 pokoi Kraków Zwierzyniec, 296,34 m2, działka 2100 m2 - nr 1
Oferta sprzedaży od Platforma Mieszkaniowa
Kraków, Zwierzyniec, ul. Pod Stokiem (6,7km od centrum Krakowa)

Główne cechy domu
Ważne informacje
Dom i działka
Dodatkowe informacje
Udogodnienia

Basen

Winda

Klimatyzacja

Inteligentny dom

Sauna
Inwestycja
Willa pod Stokiem
małopolskie, Kraków, Zwierzyniec
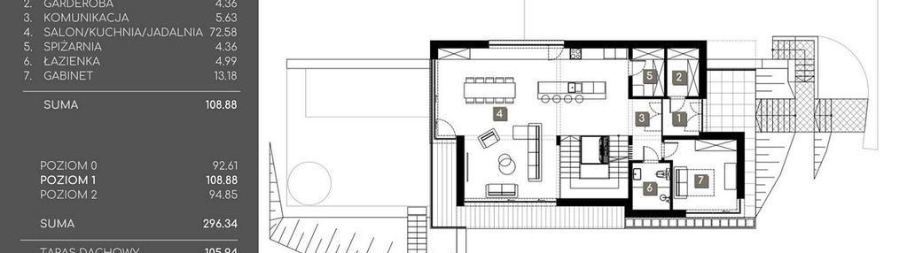
- Luksusowy standard wykończenia, inwestycja klasy premium - Inwestycja oferuje unikalną, prywatną przestrzeń do wypoczynku, zaprojektowaną z myślą o regeneracji i komforcie domowników. - Jednym z największych atutów willi jest spektakularny ogród o powierzchni 21 arów, taras dachowy oraz wyjątkowa lokalizacja przy terenach zielonych. - Willa została wyposażona w zaawansowane systemy technologiczne, które podnoszą komfort, energooszczędność i bezpieczeństwo. Przestronny salon z kuchnią i jadalnią o powierzchni 73 m², pięć pełnowymiarowych pokoi oraz prywatna strefa wellness z basenem i sauną tworzą funkcjonalną i luksusową całość. Willa oferuje również zielony taras dachowy o powierzchni 106 m², windę, garaż dwustanowiskowy oraz zaawansowane technologie smart home. Położenie na 21-arowej działce graniczącej z terenami zielonymi zapewnia prywatność, ciszę i prestiż – rzadko spotykane w granicach Krakowa.
Dostępne domy w tej inwestycji
| Nazwa | Rzut | Pokoje | Powierzchnia | Piętra | Cena | Status |