Nowy dom na sprzedaż 4 pokoje Łódź Widzew, 89,39 m2, działka 226 m2 - nr 5B
Oferta sprzedaży od CAMAR Sp. z o.o.
Łódź, Widzew, Mileszki, ul. Lawinowa 18 (4,9km od centrum Łodzi)

Główne cechy domu
Ważne informacje
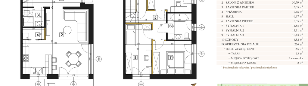
Dom i działka
Dodatkowe informacje
Udogodnienia

Inteligentny dom

Sauna
Przyroda

Park
Inwestycja
Lawinowa 18
łódzkie, Łódź, Widzew, Mileszki
LAWINOWA 18 to miejsce, gdzie architektura subtelnie współgra z naturą. Ten prestiżowy projekt powstał z myślą o osobach, które szukają nie tylko domu, lecz również wewnętrznego spokoju, estetycznej spójności i świadomego życia na najwyższym poziomie. Zaledwie kilka minut od serca miasta Łódź, a jednak z dala od miejskiego zgiełku. Tu codzienność zwalnia, a życie nabiera głębi. Bez pośpiechu, bez hałasu, za to w zgodzie z własnym rytmem. To przestrzeń dla tych, którzy potrzebują nie tylko wygody, ale też chwili zatrzymania – własnego kawałka świata, w którym można naprawdę odetchnąć. NAJWAŻNIEJSZE ATUTY OSIEDLA: • Kameralna zabudowa bliźniacza (zabudowa bliźniacza oraz zabudowa bliźniacza dwulokalowa) • Ponad 4000m2 prywatnego parku z hamakami, leżakami i ławeczkami • Kompleks z saunami oraz strefą relaksu – wyłącznie dla mieszkańców • Zaawansowane rozwiązania technologiczne: pompy ciepła, całościowe ogrzewanie podłogowe, rekuperacja • Unikatowa elewacja z ręcznie wyrabianej płytki klinkierowej, z eleganckimi lamelami dekoracyjnymi • 2 miejsca postojowe, wbudowany garaż (w zabudowie bliźniaczej) – w cenie • Przemyślany układ funkcjonalny, bez skosów na piętrze (w przypadku zabudowy bliźniaczej możliwość wyboru układu funkcjonalnego) • Miejsca postojowe dla gości na terenie osiedla • Możliwość elastycznych zmian lokatorskich • Możliwość wykończenia pod klucz (76 320 zł – pow. 89,39 m² / 79 800 zł – pow. 96,80 m² / 99 900 zł – pow. 134,48 m²) LOKALIZACJA – SPOKÓJ Z DOSTĘPEM DO MIASTA: Osiedle Lawinowa 18 powstaje w miejscu, które łączy dwa pozornie odległe światy – naturalną ciszę otoczenia z wygodnym dostępem do miasta. Wystarczy chwila, by znaleźć się w centrum Łodzi, w prestiżowym Monopolis czy w tętniącej życiem Manufakturze. Codzienne zakupy w pobliskiej galerii handlowej „Cegielnia”, kolacja w restauracji czy dostęp do wysokiej jakości opieki medycznej są tu zawsze na wyciągnięcie ręki. Dla aktywnych – Centrum Sportu UŁ, kompleks MOSiR i liczne korty tenisowe znajdują się w zasięgu kilku minut jazdy. A jeśli często podróżujesz – szybki dojazd do autostrady A1 i głównych dworców sprawia, że Lawinowa 18 jest równie dobrze skomunikowana, co spokojna. Dystanse orientacyjne: • 850 m do Galerii Handlowej Cegielnia • 5 km do centrum Łodzi, Monopolis i EC1 • 5 km do Łódź Fabryczna i Łódź Widzew • 3–4 km do obiektów sportowych (Korty Tenisowe MOSiR, Centrum Sportu UŁ) • 1 km do przedszkola, 2 km do szkoły podstawowej • 9 km do wjazdu na A1 i obwodnicy Łodzi
Dostępne domy w tej inwestycji
| Nazwa | Rzut | Pokoje | Powierzchnia | Piętra | Cena | Status |