Nowy dom na sprzedaż 4 pokoje Łódź Górna, 74,16 m2 - nr 40
Oferta sprzedaży od Novisa Development Sp. z o.o.
Łódź, Górna, Ruda, ul. Mały Skręt (7,6km od centrum Łodzi)

Główne cechy domu
Opis nieruchomości o powierzchni 74,16 m2
Dom w inwestycji: Boska Ksawerowska 2 etap 3
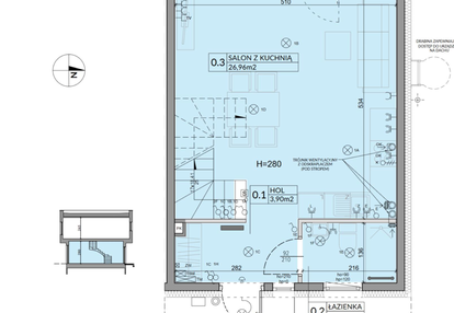
Oto 74-metrowy dom dla rodziny, która ceni wygodę i funkcjonalność. Zlokalizowany w zachodniej części osiedla, zapewnia doskonałe warunki do spędzania popołudni i wieczorów na świeżym powietrzu. Salon z aneksem kuchennym tworzy przestronną strefę dzienną. Wygodna łazienka na parterze zapewnia komfort na co dzień. Na piętrze mamy trzy sypialnie z możliwością zaaranżowania jednego z pokoi na gabinet lub domowe biuro. Przedstawiony dom z ogrodem to świetne rozwiązanie dla rodzin z dziećmi, które potrzebują przestrzeni do zabawy na świeżym powietrzu.
Ważne informacje
Dom i działka
Dodatkowe informacje
Przyroda

Park

Las

Jezioro
Inwestycja
Boska Ksawerowska 2 etap 3
łódzkie, Łódź, Górna, Ruda
Boska Ksawerowska 2 – zamieszkaj tam, gdzie natura mówi dzień dobry Zielony zakątek w granicach Łodzi – tak w skrócie można opisać Boską Ksawerowską 2. To osiedle powstało z myślą o tych, którzy pragną więcej równowagi. Mniej hałasu, więcej ciszy. Mniej pośpiechu, więcej przestrzeni dla siebie. Wśród drzew i ogrodów powstaje 60 domów, które pozwolą Ci codziennie na chwilę oddechu – i to bez rezygnowania z miejskich wygód. Wysokie sufity, ogromne okna i własny ogród tworzą przestrzeń, w której można naprawdę odpocząć. Każdy dom to kameralna oaza – zaprojektowana, by wspierać Twój styl życia. Zaledwie kilka minut dzieli Cię od przedszkola, szkoły, sklepu, lasu czy przystanku – ale na co dzień możesz żyć wśród zieleni, z dala od zgiełku. Zatrzymaj się. Rozejrzyj. Może to właśnie tutaj zaczyna się Twój nowy rozdział? Spacer 3D (lokal 4) : https://youtu.be/UGW4qJftrQY Skorzystaj z Rodzinnego Kredytu Mieszkaniowego i kup dom w inwestycji Boska Ksawerowska 2 z minimalnym wkładem własnym – już ok. 20-30 tys. zł. Jeśli posiadasz zdolność kredytową, brakujący wkład może zostać objęty gwarancją BKG. To rozwiązanie szczególnie korzystne dla rodzin i osób planujących przyszłość – w ramach programu, po narodzinach kolejnego dziecka, możliwa jest spłata części kredytu przez państwo (tzw. spłata rodzinna), która może sięgnąć nawet 60 000 zł. To oznacza realny start we własny, przestronny dom z ogrodem, bez konieczności angażowania dużych oszczędności na początku. Chcesz sprawdzić, jak to wygląda w praktyce przy konkretnym domu? Zostaw kontakt – oddzwonimy i przeprowadzimy Cię przez cały proces.
Dostępne domy w tej inwestycji
| Nazwa | Rzut | Pokoje | Powierzchnia | Piętra | Cena | Status |