Nowy dom na sprzedaż 4 pokoje Łódź Widzew, 86,74 m2, działka 252,50 m2 - nr 5A
Oferta sprzedaży od CAMAR Sp. z o.o.
Łódź, Dolina Łódki, ul. Okólna (7,9km od centrum Łodzi)

Główne cechy domu
Ważne informacje
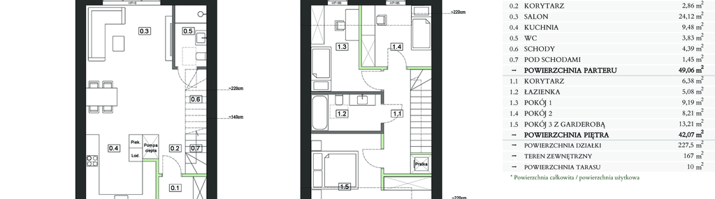
Dom i działka
Dodatkowe informacje
Udogodnienia

Inteligentny dom
Przyroda

Las
Inwestycja
Domy w akacjach
łódzkie, Łódź, Widzew, Dolina Łódki
DOMY W AKACJACH — BLISKO MIASTA, JESZCZE BLIŻEJ NATURY. Kameralne osiedle domów w zabudowie bliźniaczej tuż przy Lesie Łagiewnickim. Tu przywileje miasta spotykają się z kojącą ciszą otuliny Parku Krajobrazowego Wzniesień Łódzkich — bez kompromisów w żadną stronę. DOPASOWANE UKŁADY FUNKCJONALNE Osiedle oferuje możliwość wyboru kilku gotowych układów funkcjonalnych – dopasowanych do różnych potrzeb i stylów życia. • Dom TYP 1 to praktycznie rozwiązanie z trzema sypialniami i wygodną strefą dzienną. • Dom TYP 2, dostępny jest w trzech wariantach do wyboru: z przestronnym salonem, garażem lub dodatkowym gabinetem. Wszystkie opcje dostępne są w cenie domu. Dla osób, które chciałyby wprowadzić dodatkowe modyfikacje, przewidziano możliwość indywidualnych zmian lokatorskich – np. przesunięcia ścian, punktów elektrycznych czy powiększenia otworów okiennych. Takie rozwiązania wyceniamy indywidualnie, po wcześniejszym uzgodnieniu szczegółów z biurem sprzedaży. NAJWAŻNIEJSZE ATUTY OSIEDLA: • Kameralne osiedle domów w zabudowie bliźniaczej w otoczeniu natury • Parkowe części wspólne z ławeczkami • Elastyczne zmiany lokatorskie • Przemyślane układy funkcjonalne • Zaawansowane rozwiązania technologiczne: pompy ciepła oraz całościowe ogrzewanie podłogowe • Osiedle ogrodzone, brama wjazdowa, monitoring części wspólnych • Miejsca postojowe dla gości na terenie osiedla • Możliwość wykończenia pod klucz W STANDARDZIE (w cenie domu): • 2 miejsca postojowe • Przydomowy taras z kostki brukowej • Ekologiczna przydomowa oczyszczalnia • Garaż w bryle budynku (DOM o pow. 97,09 m2 - wariant 2) DYSTANSE ORIENTACYJNE: • Las Łagiewnicki: ~3 min • Arturówek: ~13 min • Stadnina koni: ~5 min • Szkoła podstawowa: ~8 min • Żłobek i przedszkole: ~6 min • Przystanek MPK: ~1 min • Stacja PKP: ~9 min • Centrum handlowe M1: ~11 min • Manufaktura: ~15 min
Dostępne domy w tej inwestycji
| Nazwa | Rzut | Pokoje | Powierzchnia | Piętra | Cena | Status |