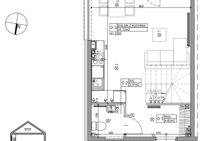
Nowy dom na sprzedaż 3 pokoje Łódź Górna, 65,15 m2, działka 201,93 m2 - nr 26
Oferta sprzedaży od Novisa Development Sp. z o.o.
Łódź, Górna, Chojny, ul. Zygmunta (6,3km od centrum Łodzi)

Główne cechy domu
Ważne informacje
Dom i działka
Dodatkowe informacje
Przyroda

Jezioro

Las
Inwestycja
Zielone Ogrody
łódzkie, Łódź, Górna, Chojny
Zielone Ogrody - Zaciszne życie w mieście W zielonej południowo-wschodniej części Łodzi powstaje osiedle Zielone Ogrody. To idealne miejsce dla tych, którzy pragną uciec od miejskiego chaosu, zachowując jednocześnie łatwy dostęp do wszystkich udogodnień. Bliskość głównych arterii komunikacyjnych ułatwi przyszłym mieszkańcom szybki dojazd do centrum Łodzi, jak i wyjazd poza miasto. Przestrzeń, tereny zielone i zaplanowany na terenie inwestycji park kieszonkowy stworzą przyjazne, pełne harmonii otoczenie dla rodzin z dziećmi oraz osób ceniących kontakt z przyrodą. Zielone Ogrody w Łodzi to 26 lokali w zabudowie bliźniaczej. Inwestycja powstaje z myślą o rodzinach które cenią sobie odpoczynek na świeżym powietrzu i bliskość natury. Dlatego każdy z lokali posiada ogród o powierzchni od 33 do aż 217 metrów kwadratowych. Największe ogrody są narożne, co daje ogromne możliwości aranżacji i sprawia, że słońce dociera tam niemal przez cały dzień. Biała elewacja w połączeniu z jasno szarym dachem i oknami w kolorze drewna nadaje osiedlu lekki i delikatny wygląd nie przytłaczający otaczającej przyrody. Link do filmu ze spaceru 3D: https://youtu.be/4EQvjnmh20s?si=Y298bzzzGUmsH8HF
Dostępne domy w tej inwestycji
| Nazwa | Rzut | Pokoje | Powierzchnia | Piętra | Cena | Status |