Nowy dom na sprzedaż 4 pokoje Łomianki Dolne, 96,16 m2, działka 283 m2 - nr 9B
Oferta sprzedaży od Sławbud
Rezerwacjawarszawski zachodni, Łomianki Dolne, ul. Spokojna/Wyjątkowa

Główne cechy domu
Ważne informacje
Dom i działka
Dodatkowe informacje
Przyroda

Las

Jezioro

Rezerwat przyrody

Park
Inwestycja
Osiedle Slow Life
mazowieckie, warszawski zachodni, Łomianki Dolne
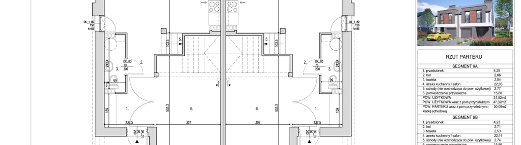
Osiedle Domów SLOW LIFE to kameralna inwestycja zlokalizowana tuż przy Parku Miejskim w Łomiankach, stworzona z myślą o osobach ceniących spokój, prywatność i bliskość natury, a jednocześnie nowoczesne i ekologiczne rozwiązania. Inwestycja obejmuje 14 domów w zabudowie dwulokalowej, z których każdy lokal ma powierzchnię około 101 m? oraz własną działkę do wyłącznego korzystania. Każdy dom posiada prywatny ogródek i taras, a całe osiedle jest ogrodzone i wyposażone w bramę oraz furtkę z kontrolą dostępu, co zapewnia mieszkańcom bezpieczeństwo i komfort. Oferowane są dwa warianty segmentów: Wariant 1 – segment z garażem w bryle budynku – bezpieczne parkowanie samochodu, dodatkowa przestrzeń do przechowywania oraz bezpośredni dostęp do domu; drugie miejsce parkingowe na podjeździe. Wariant 2 – segment z oddzielną kuchnią – garaż został zastąpiony przestronną kuchnią z jadalnią, tworząc większą i lepiej doświetloną strefę dzienną; dwa miejsca parkingowe przed lokalem. Dla obu wariantów istnieje możliwość wykonania dodatkowej łazienki na piętrze w największej sypialni – szczegółowy rzut w ofercie. Każdy lokal zaprojektowano na dwóch kondygnacjach. Parter stanowi jasną i przestronną strefę dzienną z salonem, jadalnią i widną kuchnią, uzupełnioną o toaletę oraz wyjście na taras i ogródek. Na piętrze znajdują się trzy komfortowe sypialnie oraz funkcjonalna łazienka dostępna z przedpokoju. Domy wykonano z wysokiej jakości materiałów, w tym pustaków ceramicznych Porotherm, monolitycznych stropów żelbetowych oraz dodatkowej izolacji termicznej. Ściany między lokalowe z bloczków Silka zapewniają doskonałą izolację akustyczną, a duże, trzyszybowe okna gwarantują ciszę, komfort cieplny i niższe koszty eksploatacji, jednocześnie zapewniając bardzo dobre doświetlenie wnętrz oraz widok na Park Miejski. Każdy dom wyposażony jest w nowoczesny Eko-Pakiet energooszczędny, obejmujący: Pompa ciepła – ekologiczne i wydajne źródło ogrzewania Rekuperacja – stały dopływ świeżego powietrza przy niskim zużyciu energii Instalacja fotowoltaiczna – darmowa energia słoneczna i niższe koszty eksploatacji Inwestycja oferuje bardzo dobre połączenie z Warszawą, między innymi dzięki bezpośrednim liniom ZTM do stacji metra Młociny, co czyni Osiedle Slow Life idealnym miejscem zarówno dla rodzin, jak i osób pracujących w stolicy, które chcą mieszkać blisko natury, bez rezygnacji z miejskich udogodnień. Każdy detal został starannie zaprojektowany, by połączyć estetykę, funkcjonalność i nowoczesne technologie. Prospekt informacyjny inwestycji dostępny jest na stronie www.slawbud.pl. Zamieszkaj tam, gdzie nowoczesny design spotyka się z codzienną funkcjonalnością. Budowa inwestycji została zakończona, a planowany termin oddania do użytkowania przypada na I kwartał 2026 roku.
Dostępne domy w tej inwestycji
| Nazwa | Rzut | Pokoje | Powierzchnia | Piętra | Cena | Status |