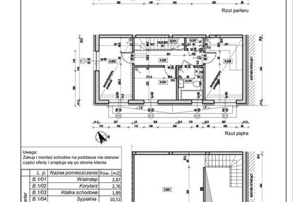
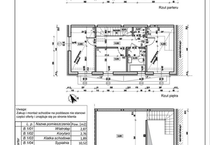
Nowy dom na sprzedaż 4 pokoje Radwanice, 84,83 m2 - nr 35 G/2
Oferta sprzedaży od Platforma Mieszkaniowa
wrocławski, Radwanice, ul. Spacerowa

Główne cechy domu
Ważne informacje
Dom i działka
Inwestycja
Spacerowa Park Radwanice
dolnośląskie, wrocławski, Radwanice
Osiedle SPACEROWA PARK w podwrocławskich Radwanicach (ok. 1km od granicy Wrocławia, ok. 8km od centrum) – to kompleks 18 nowoczesnych apartamentów w niskiej zabudowie bliźniaczej, położonych w cichej i spokojnej okolicy gwarantującej komfort i poczucie wygody oraz bezpieczeństwa. Ulica Spacerowa położona jest w południowo – zachodniej części Radwanic, ok. 300m od DK94 (kier. Wrocław – Opole), do wschodniej obwodnicy Wrocławia – ok. 2km. W najbliższej okolicy szkoła, przedszkole, sklepy, punkty usługowe, przystanek autobusowy, stacja benzynowa itp. Powierzchnia apartamentów: +/- 67 – 84m², jedno lub dwupoziomowe z możliwością własnej aranżacji wnętrz oraz powierzchni, w tym antresoli. Do każdego apartamentu miejsce postojowe naziemne.
Dostępne domy w tej inwestycji
| Nazwa | Rzut | Pokoje | Powierzchnia | Piętra | Cena | Status |