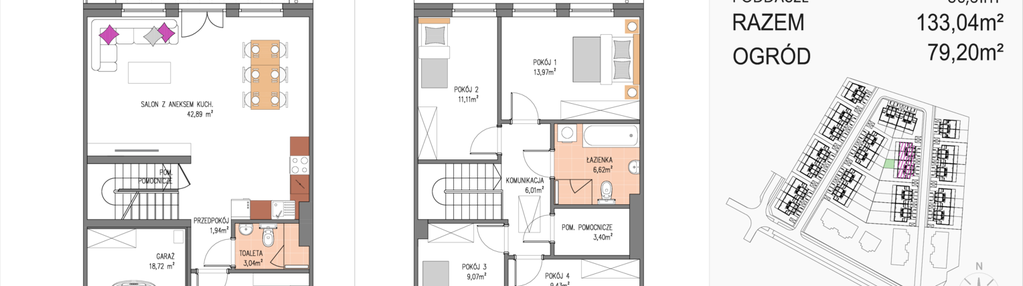
Nowy dom na sprzedaż 5 pokoi Siechnice, 134,87 m2, działka 209,33 m2 - nr A13/2
Oferta sprzedaży od ATOM deweloper sp. z o.o.
RezerwacjaSiechnice, ul. Henryka II

Główne cechy domu
Ważne informacje
Dom i działka
Inwestycja
ATOM Park
dolnośląskie, wrocławski, Siechnice
ATOM Park to nasza kolejna inwestycja w Siechnicach. Powstaje przy ulicy Henryka III. Jest to doskonałe miejsce i adres dla wszystkich tych, którzy cenią sobie zaciszne, przyjazne i zielone przestrzenie, w pobliżu terenów rekreacyjnych i osiedli domów jednorodzinnych. Rozpoczęcie budowy IV kwartał 2024 r. Zakończenie IV kwartał 2025r. Tylko 5 km od granic Wrocławia Forma własności: własność Bezpłatnie pomagamy klientom w uzyskaniu kredytu
Dostępne domy w tej inwestycji
| Nazwa | Rzut | Pokoje | Powierzchnia | Piętra | Cena | Status |