Nowy dom na sprzedaż 6 pokoi Sulejówek, 156,95 m2 - nr 24C
Oferta sprzedaży od Domeko Sp. z o.o.
Sulejówek, ul. Drobiarska 22-24

Główne cechy domu
Ważne informacje
Dom i działka
Dodatkowe informacje
Udogodnienia

Plac zabaw
Przyroda

Park

Las
Inwestycja
Osiedle Drobiarska
mazowieckie, miński, Sulejówek
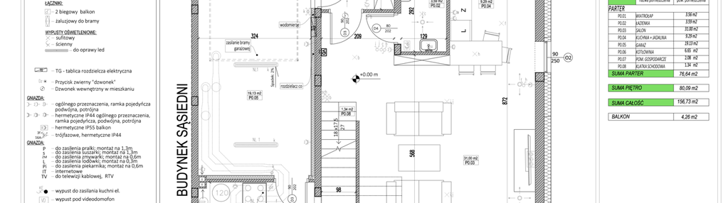
Odkryj wyjątkowe osiedle nowoczesnych domów w zabudowie bliźniaczej, położone w cichej i zielonej części Sulejówka przy ul. Drobiarskiej. Każdy segment oferuje od 150 do 156 m² starannie zaprojektowanej przestrzeni użytkowej oraz dodatkowe 70 m² poddasza, które możesz dostosować do swoich potrzeb. Komfort i energooszczędność to priorytet – domy wyposażone są w nowoczesne pompy ciepła oraz system rekuperacji, zapewniające świeże powietrze i niższe koszty utrzymania. Przemyślana izolacja termiczna oraz okna trzyszybowe gwarantują ciepło zimą i przyjemny chłód latem. Zielona okolica, spokojne sąsiedztwo i położenie przy bocznej, ślepej uliczce sprawiają, że jest to idealne miejsce dla rodzin ceniących ciszę i kontakt z naturą. Dzięki pełnemu uzbrojeniu w media, w tym światłowód, Twój nowy dom łączy spokój z nowoczesnym komfortem. Przedstawiamy nowoczesne osiedle składające się z 10 domów w zabudowie bliźniaczej, zlokalizowane w spokojnej części Sulejówka przy ul. Drobiarskiej 22. Układ pomieszczeń: Parter: przestronny salon z możliwością wydzielenia kuchni jako aneksu lub oddzielnego pomieszczenia, łazienka, garaż oraz kotłownia. Piętro: w zależności od preferencji, dostępne są układy z 4 lub 5 sypialniami oraz łazienką. Standard wykończenia: Domy charakteryzują się wysokim standardem izolacji termicznej dzięki zastosowaniu okien trzyszybowych oraz 20 cm szarego styropianu. Ogrzewanie podłogowe zasilane nowoczesną pompą ciepła zapewnia komfort cieplny i energooszczędność. Media: Do budynków doprowadzone są: prąd, wodociąg, kanalizacja oraz światłowód. Dla zainteresowanych istnieje możliwość przyłączenia gazu. Lokalizacja: Osiedle usytuowane jest przy bocznej uliczce odchodzącej od ul. Drobiarskiej, co gwarantuje ciszę i spokój. Termin oddania: Budynki zostały odebrane w lipcu 2024 roku, dzięki czemu są już dostępne do zamieszkania. Inwestycja stanowi doskonałą propozycję dla osób poszukujących komfortowego i nowoczesnego domu w spokojnej okolicy, z jednoczesnym dostępem do niezbędnej infrastruktury.
Dostępne domy w tej inwestycji
| Nazwa | Rzut | Pokoje | Powierzchnia | Piętra | Cena | Status |