Nowy dom na sprzedaż 5 pokoi Szczecin Prawobrzeże, 133,16 m2, działka 520 m2 - nr Dom 6
Oferta sprzedaży od CEGROUP
RezerwacjaSzczecin, Prawobrzeże, Płonia-Śmierdnica-Jezierzyce, ul. Ceramiczna (15km od centrum Szczecina)

Główne cechy domu
Ważne informacje
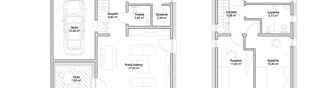
Dom i działka
Dodatkowe informacje
Udogodnienia

Inteligentny dom
Przyroda

Park

Jezioro

Rezerwat przyrody

Las
Inwestycja
Osiedle Trzy Rzeki
zachodniopomorskie, Szczecin, Prawobrzeże, Płonia-Śmierdnica-Jezierzyce
Nazwa naszej inwestycji nie jest przypadkowa – to właśnie tutaj mijają się trzy rzeki: Leszczyniec, Śmierdnicki Potok i Płonia, tworząc tym samym wyjątkowy krajobraz. Otaczający osiedle pejzaż rozciąga się na peryferiach Puszczy Bukowej i to właśnie w jej okolicy powstaje kameralne osiedle Trzy Rzeki. Oferowane przez nas domy prezentują nowoczesne podejście do budownictwa i wysoki standard wykończenia, a także przemyślany układ przestrzenny. Duże, nasłonecznione działki skierowane na południe sprawiają, że każdy z domów cieszy się dostępem do światła przez cały dzień. Przystępna cena za metr kwadratowy idzie tu w parze z wysokim standardem wykonania. Odkryj harmonię mieszkania w zgodzie z naturą, bez rezygnowania z bliskości miasta. Z myślą o Twoim komforcie Dojazd drogą asfaltową, w pełni wykończony podjazd i ogrodzenie każdej działki to gwarancja wygody i bezpieczeństwa. Ekskluzywne domy parterowe w błogiej i cichej okolicy zapewniają poczucie prywatności. Dodatkowo inwestycja Osiedle Trzy Rzeki oferuje nowoczesne rozwiązania w kwestii energooszczędności. Każdy dom wyposażony został w pompę ciepła i ogrzewanie podłogowe. Zastosowano okna trzyszybowe aluminiowe gwarantujące doskonałą izolację termiczną oraz akustyczną. Ponadto każdy dom przygotowany jest do montażu instalacji fotowoltaicznej. Wykończony na zewnątrz taras stanowi idealne miejsce do relaksu. Konstrukcja budynku dostosowana jest do adaptacji poddasza jako dodatkowych pomieszczeń użytkowych . z wygodną klatką schodową oraz dodatkowym ich doświetleniem.
Dostępne domy w tej inwestycji
| Nazwa | Rzut | Pokoje | Powierzchnia | Piętra | Cena | Status |