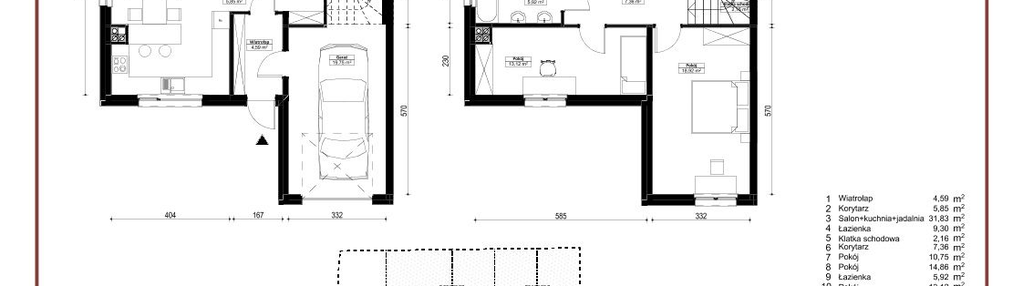
Nowe dom na sprzedaż 5 pokoi Szymanów, 146,57 m2, działka 250 m2 - nr B5a
Oferta sprzedaży od Platforma Mieszkaniowa
trzebnicki, Szymanów, ul. Lipowa 44


Główne cechy domu
Ważne informacje
Dom i działka
Dodatkowe informacje
Przyroda

Park
Inwestycja

Szymanów
dolnośląskie, trzebnicki, Szymanów
Nieruchomość zlokalizowana jest w obszarze zabudowy jednorodzinnej. W ofercie znajduje się 12 lokali mieszkalnych o powierzchni 146 m2 z ogródkami o powierzchni od 117 m2 do 446 m2. Połączenie dachów pokrytych ceramiczną dachówka z elewacją utrzymaną w kolorach szarości i bieli z ceglanymi elementami nadaje architekturze obiektu klasycznego charakteru jak również nowoczesnego rysu. Inwestycja zostanie oddana do użytkowania z kompleksowym zagospodarowaniem terenu obejmującym zieleń urządzoną, ogrodzenia, dojścia i dojazdy oraz małą architekturę. Osiedle nabierze charakteru zamkniętego.
Dostępne mieszkania w tej inwestycji
Nazwa | Rzut | Pokoje | Powierzchnia | Piętro | Cena | Status |