Dom na sprzedaż 10 pokoi Tczew, 573 m2, działka 304 m2
Oferta sprzedaży od Ratajczak Nieruchomości
Tczew
2 289 000 zł
3 994 zł/m2

Główne cechy domu
Opis nieruchomości o powierzchni 573 m2
Zabytkowy charakter - współczesne możliwości
Zabytkowa Kamienica na sprzedaż - serce Starego Miasta w Tczewie!
Wyjątkowa nieruchomość z ogromnym potencjałem inwestycyjnym
- Lokalizacja: Rynek, Tczew
- Cena: do negocjacji - zaproponuj swoją ofertę
OPIS NIERUCHOMOŚCI
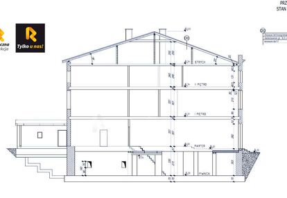
Na sprzedaż zabytkowa kamienica o łącznej powierzchni 573 m², zlokalizowana w samym centrum historycznego Starego Miasta w Tczewie. Budynek składa się z:
- 3 kondygnacji naziemnych
- 1 kondygnacji podziemnej (piwnica)
Dodatkowo, na działce znajdują się budynki o łącznej powierzchni ok. 120 m² (część tylna), aktualnie wykorzystywane jako:
- sala bankietowa
- druga sala restauracyjna
- warsztat rzeźbiarski
PRZEZNACZENIE I MOŻLIWOŚCI
Kamienica idealnie nadaje się pod:
- działalność gastronomiczną
- działalność kulturalną (np. galeria, teatr, przestrzeń wystawiennicza)
- usługi (np. kancelarie, biura, butikowy hotel)
Obecnie na parterze funkcjonuje restauracja z pełnym zapleczem.
LOKALIZACJA - KLUCZOWY ATUT
- Ścisłe centrum Starego Miasta - najbardziej reprezentacyjna część Tczewa
- Duża widoczność i dostępność - bezpośrednie sąsiedztwo lokali gastronomicznych, usługowych i atrakcji turystycznych
- Unikalny klimat zabytkowej zabudowy i ruch turystyczny przez cały rok
STAN TECHNICZNY
- Parter: funkcjonująca restauracja
- I i II piętro: do generalnego remontu - idealne do własnej aranżacji
- Właściciel dysponuje: pełną dokumentacją techniczną, gotowym projektem przebudowy, pozwoleniem na remont
MEDIA I INSTALACJE
- ogrzewanie: gazowe + pompa ciepła
- woda: miejska
- kanalizacja: miejska
Zabytkowy charakter - współczesne możliwości
Ta nieruchomość łączy w sobie historyczny urok z nowoczesnym potencjałem użytkowym. To doskonała propozycja dla inwestora lub przedsiębiorcy, który szuka prestiżowego adresu i możliwości rozwinięcia wyjątkowej działalności w topowej lokalizacji.
_
KUP Z NAMI - NAJKORZYSTNIEJ, NAJSZYBCIEJ I BEZPIECZNIE!
Jeżeli zainteresowało Cię powyższe ogłoszenie to:
- Zadzwoń pod wskazany nr
- Umów się na Prezentację,
- Przyjedź i Obejrzyj na żywo,
- Zaproponuj Swoją cenę prezentowanej nieruchomości.
Gwarantujemy bezpieczny zakup i najlepszą CENĘ.
Oferujemy skuteczną i bezpłatną pomoc w uzyskaniu kredytu.
Zapewniamy fachowe doradztwo przy zakupie pod inwestycję.
Wszystkie nasze transakcje są objęte ubezpieczeniem OC w PZU.
Z nami u Notariusza otrzymasz Ofertę Specjalną.
Więcej podobnych ofert znajdziesz na naszej stronie: