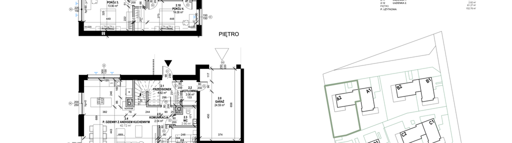
Nowy dom na sprzedaż 5 pokoi Bojano, 152,76 m2, działka 500 m2 - nr A2
Oferta sprzedaży od Duo House Sp. z o.o.
Rezerwacjawejherowski, Bojano, ul. Czynu Tysiąclecia

Główne cechy domu
Ważne informacje
Dom i działka
Dodatkowe informacje
Przyroda

Park

Las
Inwestycja
DUO Park Bojano
pomorskie, wejherowski, Bojano
Nowy wymiar życia blisko Trójmiasta Duo Park w Bojanie to kameralna inwestycja domów jednorodzinnych na 500-metrowych działkach, zaprojektowana przez Bedra - Cichosz Architekci z myślą o komforcie, ergonomii i prywatności. Każdy dom jest niezależny, zapewnia intymność i wysoki standard wykończenia, uzupełniony o energooszczędne systemy grzewcze i energetyczne. Lokalizacja łączy pełną infrastrukturę i szybki dojazd do Gdańska oraz Trójmiasta z bliskością natury, tworząc idealne, bezpieczne rozwiązanie dla rodzin na lata
Dostępne domy w tej inwestycji
| Nazwa | Rzut | Pokoje | Powierzchnia | Piętra | Cena | Status |