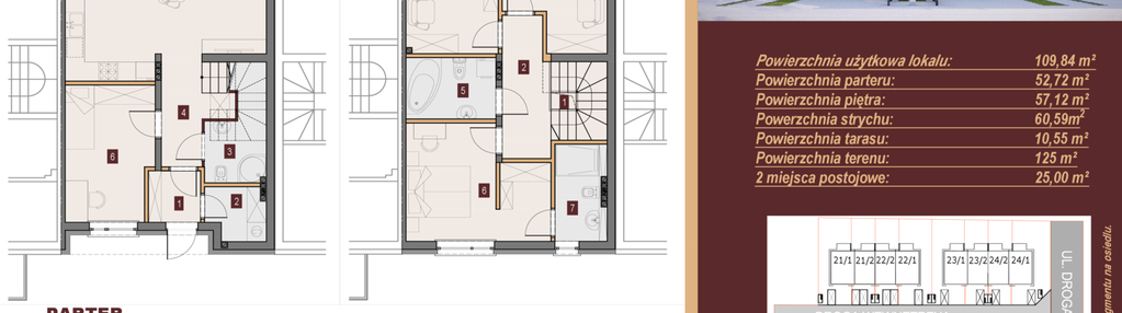
Nowy dom na sprzedaż 4 pokoje Falenty Nowe, 109,84 m2 - nr 13/2
Oferta sprzedaży od Beta Projekt Sp. z o.o. Sp. K.
pruszkowski, Falenty Nowe, ul. Droga Hrabska 5b

Główne cechy domu
Ważne informacje
Dom i działka
Dodatkowe informacje
Przyroda

Jezioro

Las

Park

Rezerwat przyrody
Inwestycja
Dzielnica Hrabska etap IV
mazowieckie, pruszkowski, Falenty Nowe
Dzielnica Hrabska to wyjątkowe osiedle budynków jednorodzinnych w zabudowie bliźniaczej, położone w gminie Falenty, przy ulicy Hrabskiej 5b w Falentach Nowych, w bliskim sąsiedztwie Al. Krakowskiej. Dzielnica Hrabska to kameralna zabudowa mieszkalna składająca się z 24 budynków o nowoczesnym i ponadczasowym designie. Zastosowane rozwiązania będą nadawać osiedlu wyróżniający się butikowy charakter. Wszystkie oferowane segmenty są bezczynszowe i mają pełny dostęp do wszystkich niezbędnych mediów miejskich, w tym wody, kanalizacji, prądu oraz światłowodu. Inwestycja wyróżnia się dużymi ogródkami. Dzięki temu mieszkańcy mogą cieszyć się niezależnością i wygodą codziennego życia w pełni wyposażonych domach.
Dostępne domy w tej inwestycji
| Nazwa | Rzut | Pokoje | Powierzchnia | Piętra | Cena | Status |