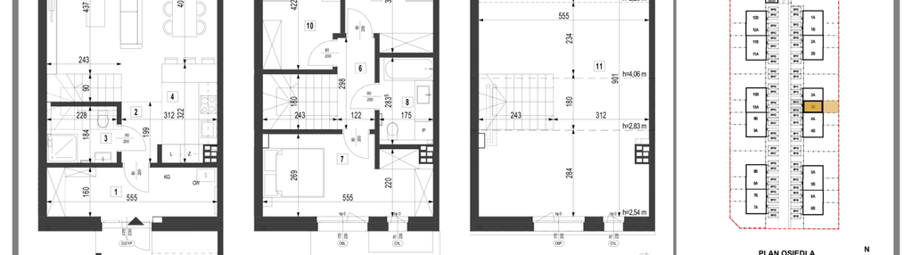
Nowy dom na sprzedaż 5 pokoi Duchnice, 124,79 m2 - nr 3B
Oferta sprzedaży od 2M Development
Rezerwacjawarszawski zachodni, Duchnice, ul. Duchnicka

Główne cechy domu
Ważne informacje
Dom i działka
Inwestycja
Duchnickie Zacisze
mazowieckie, warszawski zachodni, Duchnice
Nowoczesne osiedle w spokojnej okolicy Duchnickie Zacisze to nasza druga inwestycja deweloperska – wyjątkowy zespół 12 budynków mieszkalnych jednorodzinnych w zabudowie bliźniaczej, zlokalizowany w Duchnicach, tuż pod Warszawą. To idealne miejsce dla osób poszukujących komfortowego i nowoczesnego domu w spokojnej okolicy, z jednoczesnym szybkim dostępem do stolicy. Każdy budynek składa się z dwóch przestronnych lokali o powierzchni 87,79 m², co zapewnia optymalną przestrzeń dla rodzin z dziećmi, par czy osób pracujących zdalnie. Dodatkowym atutem jest poddasze nieużytkowe o powierzchni 28,86 lub 37 m², które można zaaranżować według własnych potrzeb – jako przestrzeń do przechowywania, dodatkowy pokój czy domowe biuro. Nowoczesna architektura budynków łączy funkcjonalność z estetyką, oferując dużą ilość naturalnego światła dzięki sporej ilości okien oraz przestronne ogrody. Duchnickie Zacisze to idealne miejsce dla tych, którzy pragną połączyć komfort życia w domu jednorodzinnym z wygodą bliskości miejskiej infrastruktury. Komfort i funkcjonalność Każdy segment zaprojektowano z myślą o komforcie mieszkańców. Właściciele będą mieli do dyspozycji: - Dwa zewnętrzne miejsca postojowe przed budynkiem, - 8 dodatkowych miejsc postojowych dla gości właścicieli segmentów, - Prywatny ogródek o powierzchni od 45 do 180 m², - Nowoczesne rozwiązania technologiczne, takie jak: + Ogrzewanie podłogowe zapewniające komfort cieplny, + Dwufunkcyjny piec gazowy zapewniający efektywne ogrzewanie i ciepłą wodę, + Panele fotowoltaiczne wspierające ekologiczne i oszczędne gospodarowanie energią. Bezpieczeństwo i prywatność Osiedle będzie zamknięte, co zapewni jego mieszkańcom większe poczucie bezpieczeństwa i prywatności. Niepowtarzalny styl Duchnickie Zacisze wyróżnia niebanalna kolorystyka elewacji, nadająca osiedlu nowoczesny, elegancki charakter. Starannie dobrana paleta barw harmonijnie wpisuje się w otaczającą przestrzeń, tworząc wyjątkowy klimat do życia. Lokalizacja – idealna równowaga Do Warszawy można dojechać w szybki i komfortowy sposób dwoma głównymi trasami: Poznańską oraz autostradą A2. Osiedle położone jest w spokojnej części Duchnic, z szybkim dostępem do Warszawy. W pobliżu znajdują się: - Szkoły i przedszkola, - Sklepy i punkty usługowe, - Stacje kolejowe oraz główne arterie komunikacyjne, - Tereny rekreacyjne i zielone, idealne do wypoczynku. Zamieszkaj w Duchnickim Zaciszu Jeśli marzysz o nowoczesnym, funkcjonalnym i dobrze skomunikowanym miejscu do życia, Duchnickie Zacisze to idealna inwestycja dla Ciebie. Skontaktuj się z nami już dziś i wybierz swój wymarzony segment!
Dostępne domy w tej inwestycji
| Nazwa | Rzut | Pokoje | Powierzchnia | Piętra | Cena | Status |