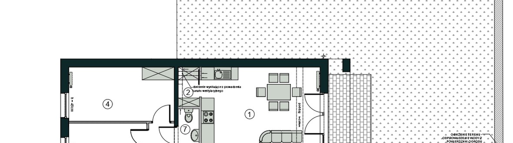
Nowe dom na sprzedaż 4 pokoje Pogórze, 92,51 m2 - nr E1
Oferta sprzedaży od Pomorskie Domy
Rezerwacjapucki, Pogórze, ul. Feliksa Dorsza

Główne cechy domu
Ważne informacje
Dom i działka
Dodatkowe informacje
Przyroda

Morze

Park

Jezioro

Rezerwat przyrody

Las
Inwestycja
Aleja Wiśniowa Pogórze
pomorskie, pucki, Pogórze
Aleja Wiśniowa – miejsce, gdzie życie rozkwita… Aleja Wiśniowa – miejsce stworzone z myślą o rodzinach szukających komfortu. Wkrótce w sprzedaży! Deweloper Pomorskie Domy z dumą prezentują swoją najnowszą inwestycję – Aleja Wiśniowa Pogórze– nowoczesne osiedle mieszkaniowe położone w malowniczym Pogórzu (gmina Kosakowo). Jest to unikatowy projekt stworzony z myślą o rodzinach, które pragną łączyć komfort i nowoczesność z bliskością natury. Aleja Wiśniowa to nie tylko miejsce do życia – to przestrzeń, w której każdy dzień staje się wyjątkowy. Miejsce, które spełnia marzenia Aleja Wiśniowa to kameralne osiedle składające się z 13 eleganckich budynków, w których rozmieszczono łącznie 52 przestronne mieszkania o metrażach mieszczących się między 60, a 96 metrów kw. Każdy budynek mieści jedynie cztery mieszkania, co zapewnia mieszkańcom poczucie prywatności i spokoju. Mieszkania zostały zaprojektowane z myślą o rodzinach, które cenią sobie przestrzeń, funkcjonalność oraz estetykę. Zróżnicowane metraże sprawiają, że każdy znajdzie tu idealną przestrzeń dla siebie – zarówno dla rodzin z dziećmi, jak i dla par poszukujących komfortowego miejsca na przyszłość. Komfortowe życie wśród zieleni Jednym z największych atutów Aleji Wiśniowej jest jej wyjątkowe położenie. Nazwa osiedla nawiązuje do licznych nasadzeń drzew, z dominującą wiśnią Kanzas na czele, która każdej wiosny rozkwita pięknymi, różowymi kwiatami, tworząc malowniczy krajobraz. To właśnie z myślą o naturze powstało to osiedle – budynki rozmieszczone są wzdłuż ulicy, tworząc swoistą „aleję”, która harmonijnie komponuje się z otoczeniem. Mieszkańcy parterowych apartamentów będą mogli cieszyć się prywatnymi ogródkami – idealnym miejscem na rodzinne spotkania, zabawy z dziećmi czy relaks w otoczeniu zieleni. Lokale na piętrze posiadają przestronne balkony, które pozwalają cieszyć się świeżym powietrzem i wspaniałymi widokami na okolicę. Bezpieczeństwo i prywatność Aleja Wiśniowa to osiedle zamknięte, co zapewnia jego mieszkańcom poczucie bezpieczeństwa i prywatności. Wejście na teren osiedla odbywa się przez imponującą bramę wjazdową, która podkreśla wyjątkowy charakter inwestycji. Całe osiedle zostało zaprojektowane tak, aby jego mieszkańcy mogli cieszyć się spokojem, z dala od miejskiego zgiełku, jednocześnie mając dostęp do wszelkich udogodnień niezbędnych do komfortowego życia. Nowoczesna infrastruktura Pomorskie Domy zadbały o to, aby Aleja Wiśniowa spełniała wszystkie oczekiwania nowoczesnych rodzin. Na terenie osiedla znajdują się miejsca postojowe oraz przestrzenie wspólne, które sprzyjają nawiązywaniu sąsiedzkich relacji. Starannie zaprojektowana infrastruktura sprawia, że mieszkańcy mają dostęp do wszystkiego, co potrzebne, aby cieszyć się codziennym życiem – bez kompromisów. Doskonała lokalizacja Pogórze w gminie Kosakowo, to lokalizacja idealna dla osób ceniących spokój i bliskość natury, w racjonalnej odległości od zatoki, co daje mieszkańcom możliwość korzystania z uroków przyrody na co dzień, a jednocześnie pragnących mieć szybki dostęp do wszystkich atutów miejskiego życia. Aleja Wiśniowa oferuje mieszkańcom znakomite połączenie z centrum Gdyni, dzięki czemu codzienne dojazdy do pracy, szkoły czy na zakupy są niezwykle wygodne. W okolicy znajdują się również liczne sklepy, placówki edukacyjne oraz tereny rekreacyjne, co czyni życie w Alei Wiśniowej jeszcze bardziej komfortowym. Prestiż i elegancja Osiedle Aleja Wiśniowa to synonim komfortu i elegancji. Nowoczesna architektura, starannie dobrane materiały wykończeniowe oraz dbałość o każdy detal sprawiają, że jest to miejsce wyjątkowe na mapie Trójmiasta. Mieszkania w Alei Wiśniowej to doskonały wybór dla osób, które pragną zamieszkać w wyjątkowym miejscu, gdzie nie ma miejsca na kompromisy. Aleja Wiśniowa – to więcej niż mieszkanie, to dom, w którym każdy dzień jest przyjemnością. Zapraszamy do odkrycia tego wyjątkowego miejsca, gdzie komfort, natura i prestiż spotykają się, tworząc idealne warunki do życia.
Dostępne mieszkania w tej inwestycji
| Nazwa | Rzut | Pokoje | Powierzchnia | Piętro | Cena | Status |