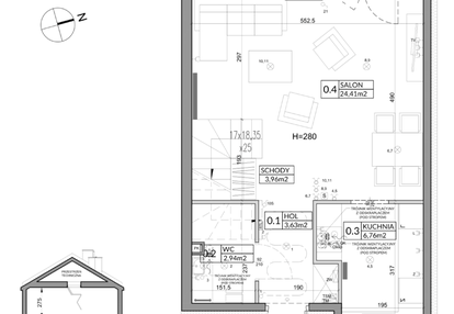
Nowy dom na sprzedaż 4 pokoje Słomin, 83,33 m2, działka 116,83 m2 - nr 15A
Oferta sprzedaży od Novisa Development Sp. z o.o.
pruszkowski, Słomin, ul. Janczewicka

Główne cechy domu
Ważne informacje
Dom i działka
Dodatkowe informacje
Przyroda

Park
Inwestycja
Nova Magdalenka 7
mazowieckie, pruszkowski, Słomin
Przestrzeń, która odpowiada na potrzeby nowoczesnej rodziny Nova Magdalenka 7 to projekt stworzony z myślą o osobach poszukujących balansu między spokojem podmiejskiego życia a bliskością metropolii. Inwestycja zlokalizowana w Słominie, zaledwie kilkanaście kilometrów od Warszawy, oferuje komfortowe domy z własnymi ogródkami i doskonałą komunikacją z centrum stolicy. Na osiedlu zaprojektowano 210 domów o powierzchni od 65 do 125 m² – w zabudowie szeregowej, bliźniaczej i wolnostojącej. Przemyślany układ pomieszczeń, wysoka jakość wykończenia, sufity do 2,8 m oraz dostęp do prywatnych ogrodów (nawet do 190 m²) gwarantują wygodę życia i przestrzeń do indywidualnej aranżacji. Funkcjonalność, światło i architektura Domy w Nova Magdalence 7 cechuje nowoczesna, spójna architektura, duże przeszklenia oraz przemyślany rozkład przestrzeni. Projekt przewiduje różne typy układów – od klasycznego podziału z osobną kuchnią, po nowoczesne przestrzenie dzienne z otwartym aneksem. W wybranych domach przewidziano również gabinet na parterze – idealne rozwiązanie dla osób pracujących zdalnie. Każdy dom to dwa pełne poziomy funkcjonalnej przestrzeni, dostęp do ogrodu i możliwość dopasowania wnętrza do własnych potrzeb. Lokalizacja, która zapewnia wygodę i dostępność Nova Magdalenka 7 powstaje w dynamicznie rozwijającej się części aglomeracji warszawskiej. W promieniu kilku minut znajdują się sklepy spożywcze (Biedronka, Lidl), placówki edukacyjne, apteki, przychodnie oraz lokale usługowe. W odległości 10 minut jazdy samochodem mieści się Centrum Handlowe Janki, oferujące bogaty wybór sklepów, restauracji i rozrywki dla całej rodziny. Dla rodzin z dziećmi szczególnie istotna będzie bliskość żłobków, przedszkoli i szkół, które zapewniają łatwy dostęp do edukacji bez konieczności dalekich dojazdów. Doskonała komunikacja i kontakt z naturą Dzięki dogodnemu położeniu w pobliżu tras ekspresowych S8 i S2, mieszkańcy Nova Magdalenka 7 mogą dotrzeć do centrum Warszawy w 25–30 minut. W bliskiej odległości od osiedla znajduje się również przystanek ZTM, który umożliwia łatwy dojazd do węzła komunikacyjnego przy P&R Al. Krakowska. W sąsiedztwie inwestycji znajdują się atrakcyjne tereny zielone – m.in. Rezerwat Przyrody Stawy Raszyńskie i Las Sękociński – które zachęcają do aktywnego spędzania czasu na świeżym powietrzu. Infrastruktura rowerowa oraz bliskość natury czynią tę lokalizację idealną dla osób ceniących zdrowy styl życia. Nova Magdalenka 7 – inwestycja na lata Projekt oferuje połączenie nowoczesnej architektury, funkcjonalnych rozwiązań i wysokiej jakości wykonania w lokalizacji o dużym potencjale rozwoju. To propozycja dla osób szukających spokojnej przestrzeni do życia, bez rezygnacji z codziennej wygody i miejskich udogodnień. Jeśli szukasz domu w zielonym otoczeniu, z szybkim dojazdem do stolicy i przemyślaną infrastrukturą – Nova Magdalenka 7 to inwestycja, którą warto poznać bliżej.
Dostępne domy w tej inwestycji
| Nazwa | Rzut | Pokoje | Powierzchnia | Piętra | Cena | Status |