Nowy dom na sprzedaż 4 pokoje Nowa Wola, 112,15 m2 - nr 30/1
Oferta sprzedaży od Dynamic Development Sp. z o.o.
piaseczyński, Nowa Wola, ul. Malwy

Główne cechy domu
Ważne informacje
Dom i działka
Dodatkowe informacje
Udogodnienia

Własna kotłownia

Własne ujęcie wody

Plac zabaw
Przyroda

Las

Jezioro

Staw
Inwestycja
Lake Village etap V
mazowieckie, piaseczyński, Nowa Wola
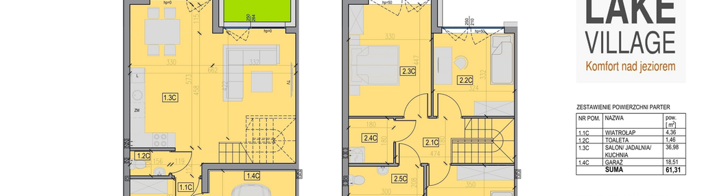
Lake Village ETAP V Inwestycja już oddana do użytkowania! Segmenty w inwestycji Lake Village, położone w Nowej Woli gm. Lesznowola, mają 112 m2.powierzchnii, na którą składa się: PARTER: salon z aneksem kuchennym z bezpośrednim wyjściem na ogródek, łazienka, wiatrołap oraz garaż PIĘTRO: sypialnia, sypialnia z tarasem o pow. ok. 7m2., sypialnia master, pomieszczenie gospodarcze, łazienka, komunikacja Nieruchomość wyposażona jest w pompę ciepła, rozprowadzone jest ogrzewanie podłogowe oraz instalacja przygotowana do montażu paneli fotowoltaicznych. Segmenty dzielą się na środkowe - z mniejszym ogródkiem oraz narożne - z większym ogródkiem. Cena w ofercie podana jest za segment narożny nie sąsiadujący bezpośrednio z jeziorkiem. Na terenie osiedla dla Mieszkańców znajduje się prywatny park z jeziorkiem, siłownią plenerową, ławeczkami, na których można swobodnie odpocząć na łonie natury, miejscem na grilla, ognisko oraz altanki, w których można zorganizować spotkanie towarzyskie. _ Niepowtarzalny kompleks willowy o podwyższonym standardzie w otoczeniu zieleni i prywatnego jeziora który nadaje temu miejscu niesamowite wrażenie luksusu i wyjątkowego charakteru. Wyjątkowe miejsce, dla Klientów ceniących komfort, wysoki standard wykończenia i nowoczesne rozwiązania architektoniczne, które pozwolą cieszyć się z życia. Wymarzone miejsce dla osób poszukujących nowoczesnego domu gdzie można odetchnąć pełną piersią i odczuć rozkosz spokoju. Inwestycja położona w Nowej Woli, cichej i bezpiecznej okolicy Warszawy idealnie skomunikowana z centrum stolicy oraz okolicznymi miastami takimi jak Piaseczno, Lesznowola, Magdalenka, Józefosław czy Nowa Iwiczna. Miasteczko Lake Village zlokalizowane jest na osiedlu, które posiada doskonale rozwiniętą infrastrukturę bliskość obiektów handlowych, lokali usługowych czy rozrywkowych dla całych rodzin, blisko osiedla znajdują się szkoły i przedszkola. Znakomite połączenia komunikacyjne z centrum miasta, ze wszystkimi jego dzielnicami oraz okolicznymi miejscowościami, takimi jak Piaseczno, Lesznowola, Nowa Iwiczna czy Józefosław, w pełni wykorzystując możliwości, jakie dają pobliskie rozległe tereny zielone, lasy czy akweny wodne zaprojektowaliśmy je z dbałością o zachowanie harmonii, która ważna jest dla mieszkańców oraz środowiska. Dają Ci nieograniczone możliwości w zakresie prowadzenia aktywnego stylu życia, uprawiania sportu na świeżym powietrzu, korzystania z obiektów rekreacyjnych czy wypoczynkowych. _ Przedstawiony rzut w ofercie jest przykładowym rzutem, nie jest powiązany z ceną apartamentu. Skontaktuj się, a chętnie przedstawimy Ci wszystkie szczegóły inwestycji. Postaw na wyższą jakość życia wspólnie z nami! Nasze biuro sprzedaży czynne jest od poniedziałku do piątku w godzinach: 09:00 - 17:00.
Dostępne domy w tej inwestycji
| Nazwa | Rzut | Pokoje | Powierzchnia | Piętra | Cena | Status |