Nowy dom na sprzedaż 3 pokoje Boryszew, 62,30 m2 - nr 35B
Oferta sprzedaży od Novisa Development Sp. z o.o.
otwocki, Boryszew, ul. Nadziei

Główne cechy domu
Opis nieruchomości o powierzchni 62,30 m2
Dom w inwestycji: Osiedle Stokrotki etap 4 i 5
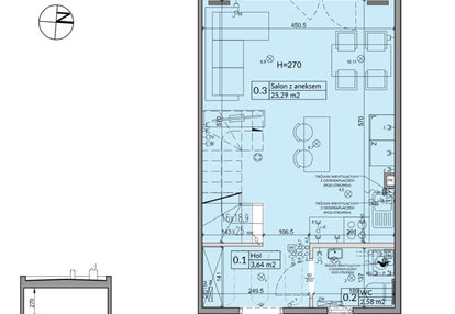
Dom o powierzchni 62 m² z kameralnym, zachodnim ogródkiem to idealne miejsce na kojące popołudnia przy zachodzącym słońcu. Z salonu z aneksem kuchennym i jadalnią wychodzi się wprost do ogrodu. Na parterze znajduje się też praktyczne WC do codziennego użytku. Na piętrze czekają 2 pokoje – wschodni i zachodni – które można zaaranżować jako sypialnię rodziców i pokój dziecięcy, gościnny lub jako cichy gabinet do pracy zdalnej. Całość uzupełnia wygodna, rodzinna łazienka z miejscem na wannę.
Ważne informacje
Dom i działka
Dodatkowe informacje
Przyroda

Jezioro

Las

Park
Inwestycja
Osiedle Stokrotki etap 4 i 5
mazowieckie, otwocki, Boryszew
Osiedle Stokrotki w Boryszewie – domy z prefabrykatów betonowych Osiedle Stokrotki w Boryszewie, w gminie Wiązowna, to propozycja dla osób, które chcą naprawdę zwolnić i zamieszkać w miejscu, gdzie codzienność wygląda inaczej niż w mieście. To przestrzeń z dala od warszawskiego zgiełku i pośpiechu – tutaj życie płynie we własnym rytmie, bliżej natury, ciszy i tego, co naprawdę ważne. To bezpieczne, spokojne miejsce, w którym można wychować dzieci i stworzyć prawdziwy dom. Za inwestycją stoi Novisa Development – lider w budownictwie jednorodzinnym w Polsce, znany z realizacji spójnych osiedli pod Warszawą. Deweloper od lat konsekwentnie tworzy miejsca do życia w duchu slow – z naciskiem na komfort, zdrowie, relaks i harmonię z otaczającą przyrodą. Każda inwestycja powstaje w oparciu o autorski Zintegrowany Proces Budowy, wypracowany w oparciu o lata doświadczeń i tysiące zrealizowanych domów. Wszystko odbywa się wewnętrznie, dom jednym dachem – od projektu, przez budowę, aż po sprzedaż i obsługę klienta – bez pośredników i bez przypadkowych rozwiązań. To podejście przekłada się na jakość, powtarzalność i realne wsparcie dla mieszkańców także po odbiorze domu. Osiedle Stokrotki obejmuje 144 nowoczesne segmenty o powierzchni od 60 do 73 m², zaprojektowane z myślą o prawdziwej wygodzie życia. W każdym domu mamy tradycyjny, sprawdzony podział stref – codzienne, wspólne chwile na parterze oraz wyciszenie i odpoczynek na piętrze. W ofercie znajdują się zarówno przytulne, 3-pokojowe domy idealne na start, jak i większe, 5-pokojowe układy z dodatkowym pokojem na parterze – świetnym jako gabinet do pracy zdalnej lub pokój dla gości. Każdy dom ma własny ogród – od kameralnych 19 m² po większe 272 m² – oraz dwa miejsca postojowe. Zakup domu to decyzja, którą warto podjąć w zgodzie ze sobą. Na Osiedlu Stokrotki nie musisz wybierać między sercem a rozsądkiem. Dom w cenie mieszkania to rozsądny wybór dla rodziny. Boryszew to wieś – i to czuć na każdym kroku. Nie ma tu kolorowej galerii handlowej naprzeciw ani ruchliwej ulicy pod oknem. Zamiast tego są łąki, pola, lasy i świeże powietrze. Wieczorem zobaczysz gwiazdy, a rano obudzi Cię śpiew ptaków, którego trudno szukać w mieście. Jednocześnie wszystko, czego potrzebujesz, jest w zasięgu kilku minut. Granica Warszawy jest 8 minut jazdy od osiedla. Wjazd na trasę S17 zajmuje 6 minut. W zasięgu 10-minutowego spaceru jest przystanek autobusowy Boryszew, z którego bezpośrednim autobusem można dojechać do Józefowa lub Otwocka. Najbliższe przedszkole jest oddalone o około 2,2 km, szkoła podstawowa o 3,8 km, a na większe zakupy do marketu dojedziesz samochodem w 10 minut. Pobliska Wiązowna to lokalne centrum życia mieszkańców – targowisko, restauracje, usługi. Zaledwie trzy kilometry od osiedla leży rodzinny park rozrywki Majaland Warszawa, idealny na weekendowe wypady z dziećmi. Dla miłośników natury okolica oferuje jeszcze więcej – Stawy Duchnowskie (oddalone o około 3,5 km), leśne trasy idealne na rower czy spacery, a także Kąpielisko Kąck – na wspólny odpoczynek w letni weekend. Osiedle Stokrotki jest dla tych, którzy chcą żyć spokojniej, bliżej natury i we własnym tempie – ale bez rezygnowania z dobrego dojazdu do Warszawy i nowoczesnych rozwiązań na co dzień. Skorzystaj z Rodzinnego Kredytu Mieszkaniowego i kup dom w inwestycji Osiedle Stokrotki z minimalnym wkładem własnym – już ok. 8–10 tys. zł. Jeśli posiadasz zdolność kredytową, brakujący wkład może zostać objęty gwarancją BKG. To rozwiązanie szczególnie korzystne dla rodzin i osób planujących przyszłość – w ramach programu, po narodzinach kolejnego dziecka, możliwa jest spłata części kredytu przez państwo (tzw. spłata rodzinna), która może sięgnąć nawet 60 000 zł. W połączeniu z atrakcyjną ceną domów, funkcjonalnymi układami 3-5-pokojowymi oraz lokalizacją sprzyjającą codziennemu życiu, program RKM sprawia, że zakup nieruchomości w tej inwestycji jest dziś znacznie łatwiejszy, niż mogłoby się wydawać. Chcesz sprawdzić, jak to wygląda w praktyce przy konkretnym domu? Zostaw kontakt – oddzwonimy i przeprowadzimy Cię przez cały proces.
Dostępne domy w tej inwestycji
| Nazwa | Rzut | Pokoje | Powierzchnia | Piętra | Cena | Status |