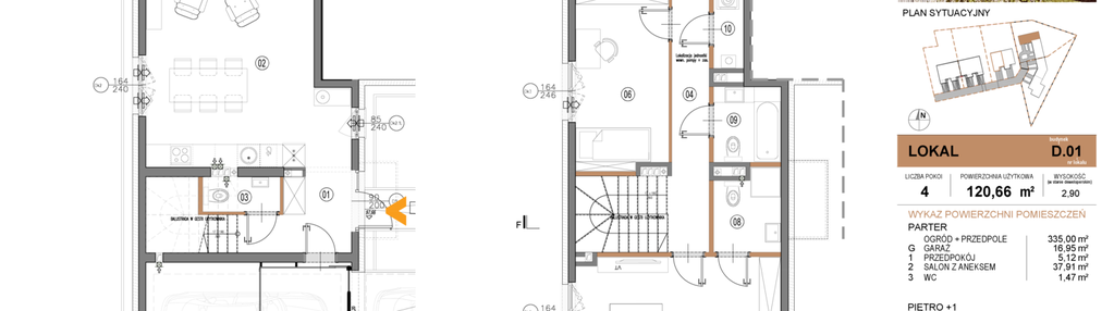
Nowy dom na sprzedaż 4 pokoje Stare Babice, 120,66 m2, działka 427 m2 - nr D.1
Oferta sprzedaży od BH inwestycje 2
warszawski zachodni, Stare Babice, ul. Osiedlowa

Główne cechy domu
Ważne informacje
Dom i działka
Dodatkowe informacje
Przyroda

Las

Rezerwat przyrody
Inwestycja
Osiedle Prestige - Stare Babice
mazowieckie, warszawski zachodni, Stare Babice
Osiedle Prestige w Starych Babicach Twój wymarzony dom czeka! Nowoczesność, komfort i styl w prestiżowej lokalizacji. Twój wymarzony dom w prestiżowej lokalizacji. Nowoczesność, komfort i styl – to właśnie znajdziesz na Osiedlu Prestige. To kameralna inwestycja w Starych Babicach, zaledwie kilka minut od Warszawy. Domy zaprojektowane z myślą o Tobie. Każdy z oferowanych domów wyróżnia się przemyślaną konstrukcją i przestronnością – powierzchnia użytkowa wynosi od 120 do 140 m², co w połączeniu z działkami o powierzchni od 250 do 480 m² zapewnia odpowiednią przestrzeń do życia i odpoczynku.To idealne miejsce dla rodzin, które szukają przestrzeni i wygody na co dzień. Kameralna przestrzeń i pełna prywatność Osiedle obejmuje 10 domów – 4 w zabudowie bliźniaczej oraz jeden wolnostojący. Dzięki temu możesz cieszyć się spokojem i kameralną atmosferą w przyjaznym sąsiedztwie. Jakość, która robi różnicę Domy budowane są z użyciem trwałych materiałów – ściany nośne wykonano z pustaków typu Porotherm, a strop i schody – z żelbetonu. Całość została ocieplona styropianem, co wpływa na efektywność energetyczną budynków. Standard wykończenia obejmuje m.in. 3-szybowe okna PCV, drzwi antywłamaniowe oraz ogrzewanie podłogowe zasilane pompą ciepła.
Dostępne domy w tej inwestycji
| Nazwa | Rzut | Pokoje | Powierzchnia | Piętra | Cena | Status |