Nowy dom na sprzedaż 5 pokoi Falenty Nowe, 149 m2 - nr 279_1
Oferta sprzedaży od TGM Partner
pruszkowski, Falenty Nowe, ul. Panoramy

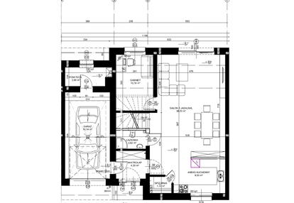
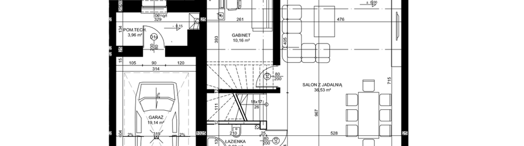
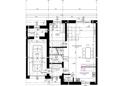
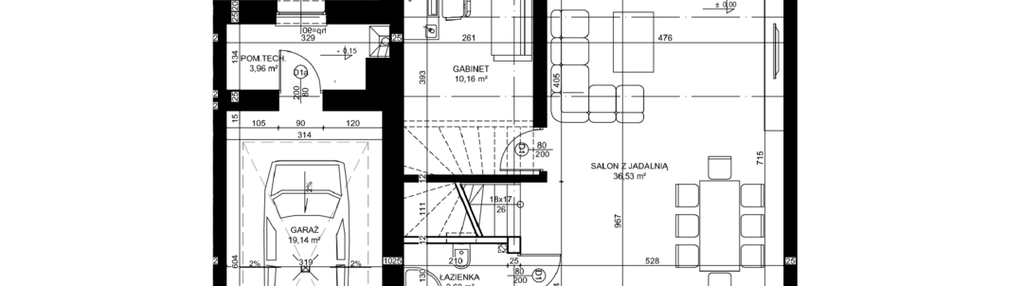
Główne cechy domu
Ważne informacje
Dom i działka
Dodatkowe informacje
Przyroda

Rezerwat przyrody

Jezioro
Inwestycja
Osiedle Droga Hrabska etap III
mazowieckie, pruszkowski, Falenty Nowe
Falenty Nowe to malownicza miejscowość i południowa dzielnica Raszyna położona w otoczeniu zieleni, urozmaicona stawami rezerwatu raszyńskiego, bezpośrednio sąsiadująca z południowymi dzielnicami Warszawy. Świetna lokalizacja zapewnia ciszę, piękne widoki oraz dogodny dojazd do centrum Warszawy w zaledwie 20 minut. Z drugiej strony infrastruktura w postaci placówek edukacyjnych, sportowych, handlowych i zdrowotnych stwarza warunki do komfortowego życia. Szybka komunikacja – z lotniskiem, Ursynowem, południowym Mokotowem ( Mordor), szybki i łatwy wyjazd na autostrady S2 i S8,S79.E77, S7 To właśnie tutaj powstał kameralny kompleks energooszczędnych budynków Osiedle Droga Hrabska przy ul. Panoramy w Falentach Nowych. Zakończyliśmy już 2 etapy inwestycji. W wyniku naszych działań powstało 8 bliźniaków, czyli 16 pojedynczych domów usytuowanych wzdłuż prawej strony ulicy Panoramy. Wszystkie z nich są już zamieszkałe. Aktualnie ruszamy z 3 etapem inwestycji! Właśnie rozpoczęliśmy budowę III etapu inwestycji Osiedle Droga Hrabska. W ramach tego etapu powstaną 2 budynki 4-lokalowe , czyli 8 segmentów. Pierwszy budynek 4-lokalowy jest planowany do oddania w IV kwartale 2026 r. Budowa kolejnych domów w ramach III etapu inwestycji planowana jest w 2027 r. Każdy z domów to energooszczędny piętrowy dom dla trzy – sześcioosobowej rodziny, dający komfort mieszkańcom ze względu na wspaniałą funkcjonalność poszczególnych pomieszczeń, dużą kubaturę ze względu na wysokości pokoi oraz bardzo duże doświetlenie z powodu ogromnych okien. Domy posiadają wszystkie instalacje wewnętrzne , zasilanie gazem miejskim, wodą miejską i prądem. W ulicy Panoramy jest kanalizacja i światłowód z możliwością wykupienia abonamentu internetowego i telewizji kablowej. Wszystkie domy zewnętrznie zachowają jednolity charakter osiedla, czyli kremową kolorystykę elewacji, ozdobną deskę i ramy okien na zewnątrz w kolorze Winchester, kolorystykę i charakter dachów oraz ogrodzenia działek. Do każdego z domów należy działka, zagospodarowana, czyli zaopatrzona w dojazdy, chodniki z kostki brukowej oraz tarasy, gdzie będzie można odpocząć po pracy we własnym ogrodzie.
Dostępne domy w tej inwestycji
| Nazwa | Rzut | Pokoje | Powierzchnia | Piętra | Cena | Status |