Nowe dom na sprzedaż 4 pokoje Góraszka, 147,95 m2 - nr O1
Oferta sprzedaży od Gomiko Capital Sp z o.o
otwocki, Góraszka, ul. Południowa


Główne cechy domu
Ważne informacje
Dom i działka
Inwestycja

Nova Góraszka
mazowieckie, otwocki, Góraszka
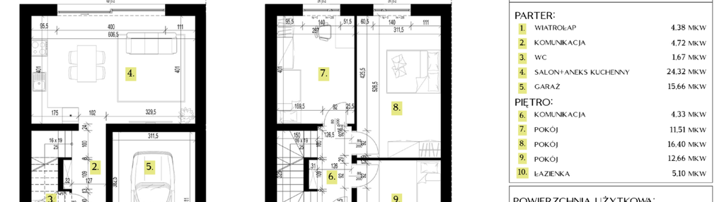
Osiedle NOVA GÓRASZKA – to miejsce, które łączy : - swobodę natury – sąsiedztwo lasów, terenów rekreacyjnych, ścieżek rowerowych. - tempo metropolii – tylko kilka kilometrów do granic Warszawy i błyskawiczny dojazd węzłami - energooszczędną technologię- pompy ciepła, ogrzewanie podłogowe, przygotowanie pod instalację fotowoltaiczną - funkcjonalny metraż -100,74 mkw plus dodatkowo przestronne doświetlone poddasze do zagospodarowania; - bezpieczeństwo i wygodę- videodomofon, garaż w bryle budynku i dodatkowe miejsce postojowe; - kameralność – jedynie 32 dwulokalowe domy oraz zagospodarowana infrastruktura; - aktywny lifestyle – Majaland, Centrum Handlowe Projekt Góraszka, single- tracki w sosnowym lesie, wake-park nad Świdrem, - historyczne klasyki w promieniu 30 minut- Zamek w Czersku, Pałac Lubomirskich, Muzeum Piłsudskiego; Ekonomia i Ekologia pod jednym dachem Nova Góraszka to miejsce, gdzie nowoczesne technologie łączą się z naturą, tworząc przestrzeń, w której żyje się wygodnie, oszczędnie i ekologicznie. Zainwestuj w dom, który troszczy się o Twoje potrzeby i o przyszłość naszej planety. Pompa ciepła Wybierając dom na osiedlu Nova Góraszka, zyskujesz nowoczesne rozwiązanie, zapewniające ciepło i gorącą wodę przez cały rok, bez gazu i kominów. To ekologiczne źródło energii, które dba o Twój portfel, a jednocześnie wspiera planetę. Ogrzewanie podłogowe Wyobraź sobie ciepło, które rozchodzi się równomiernie po całym domu. Bez zimnych ścian i widocznych kaloryferów. To nie tylko komfort, ale i mniejsze zużycie energii, które przełoży się na niższe rachunki. Przygotowana instalacja pod fotowoltaikę Zainwestuj w przyszłość. Twój dom jest już przygotowany na instalację paneli fotowoltaicznych. To rozwiązanie, które pozwoli Ci produkować własny prąd i jeszcze bardziej obniżyć koszty eksploatacji. A wszystko to bez zbędnych remontów i kucia ścian. Rekuperacja W Twoim domu zapewnia czyste, świeże, filtrowane powietrze dzięki systemowi wentylacji z odzyskiem ciepła. Lokalizacja Inwestycja położona 3 km do granic Warszawy – z szybkim dojazdem do centrum i wszystkich kluczowych punktów stolicy, oraz głównych arterii jak droga ekspresowa S17, S2 i autostrada A2
Dostępne mieszkania w tej inwestycji
Nazwa | Rzut | Pokoje | Powierzchnia | Piętro | Cena | Status |