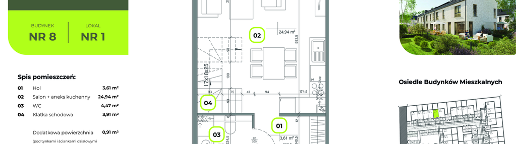
Nowy dom na sprzedaż 3 pokoje Janczewice, 73 m2 - nr B8.1
Oferta sprzedaży od MK Residential
piaseczyński, Janczewice, ul. Pszenna

Główne cechy domu
Ważne informacje
Dom i działka
Inwestycja
Przyjazne Janczewice
mazowieckie, piaseczyński, Janczewice
Pozytywne Janczewice to nowoczesne osiedle domów jednorodzinnych, zlokalizowane na południowy zachód od Warszawy, w spokojnych Janczewicach, wyróżniające się optymalnym i wygodnym rozplanowaniem powierzchni mieszkalnych. Inwestycja składa się z 34 domów. Zróżnicowane oferta metraży lokali – od 73m2 do 94m2, kierowana jest zarówno do rodzin jak i singli. Każda z jednostek będzie posiadała prywatny ogród, miejsca parkingowe oraz kilka nowoczesnych rozwiązań i udogodnień (m.in. ogrzewanie podłogowe czy energooszczędna pompa ciepła). Twoje miejsce w rytmie spokoju i Wygody Janczewice to urokliwa i spokojna miejscowość położona w powiecie Piaseczyńskim na terenie gminy Lesznowola. Gmina Lesznowola to jedna z najbardziej dynamicznie rozwijających się gmin w obrębie Warszawy. Osiedle Pozytywne Janczewice położone jest przy ulicy Pszennej, w otoczeniu domów jednorodzinnych, tuż na skraju małego kompleksu leśnego. Okolica zachęca do codziennych aktywności, znajdują się tu liczne ścieżki zachęcające do spacerów i wycieczek rowerowych. Zamień Swoje Mieszkanie na Dom Pozytywne Janczewice to jakość w przystępnej cenie. Jest to idealna propozycja dla klientów, którzy chcą sfinansować zakup domu ze środków pochodzących dzięki sprzedaży swoich nieruchomości, zyskując na tym przestronną, funkcjonalną przestrzeń oraz prywatny ogródek. TEREN INWESTYCJI Osiedle zostanie ogrodzone i wyposażone w domofon. Części wspólne będą starannie zagospodarowane – zielone dziedzińce, eleganckie dojścia do budynków, wygodny parking i garaże.
Dostępne domy w tej inwestycji
| Nazwa | Rzut | Pokoje | Powierzchnia | Piętra | Cena | Status |