Nowy dom na sprzedaż 3 pokoje Chylice-Pólko, 54,45 m2 - nr G3.2
Oferta sprzedaży od JDM Deweloper Sp. z o.o.
piaseczyński, Chylice-Pólko, ul. Witolda i Zofii Trzeciakowskich

Główne cechy domu
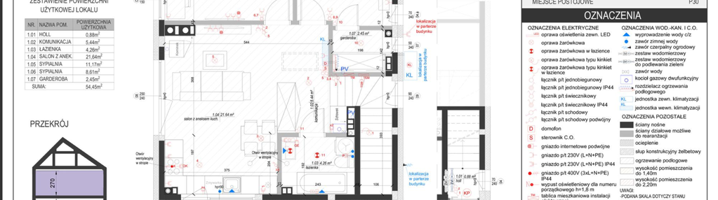
Opis nieruchomości o powierzchni 54,45 m2
Dom w inwestycji: Nove Piaseczno 2 etap G
Mieszkanie typu M znajduje się na pierwszym piętrze budynku wolnostojącego. Do mieszkania prowadzi indywidualna, wewnętrzna klatka schodowa. Dom posiada ogród o pow. od 56m2 do 71m2. Dom jest niezwykle praktyczny i funkcjonalny, spełniający oczekiwania zarówno Rodzin, jak i Singli. W domu znajduje się otwarta przestrzeń dzienna, obejmująca przestronny salon oraz kuchnię z miejscem na duży stół, idealny dla całej rodziny lub spotkań z przyjaciółmi, ergonomiczna łazienka z miejscem na dużą wannę oraz praktyczny schowek. Przesuwne okna typu slide zapewniają więcej światła dziennego i płynne połączenie wnętrza z ogrodem. W drugiej części domu znajdują się dwie sypialnie. Jedna z nich jest typu master bedroom z prywatną garderobą. Wyobraź sobie chłodne wieczory spędzone w gronie najbliższych przy kominku lub upalne dni w chłodzie klimatyzacji. Oba rozwiązania gwarantujemy w standardzie. To wszystko dostępne jest w atrakcyjnej cenie i może stać się Twoje.
Ważne informacje
Dom i działka
Dodatkowe informacje
Udogodnienia

Klimatyzacja
Przyroda

Park

Las
Inwestycja
Nove Piaseczno 2 etap G
mazowieckie, piaseczyński, Chylice-Pólko
Nove Piaseczno to miejsce, które spełni marzenia zarówno rodzin, jak i singli. Osiedle składające się z domów wolnostojących zostało zaprojektowane tak, aby zapewnić mieszkańcom niezależność w naturalnym, zielonym otoczeniu. Inwestycja realizowana jest w podwyższonym standardzie. Każdy dom wyposażony jest w klimatyzację, ogrzewanie podłogowe oraz kominek. - Domy wolnostojące - Metraże od 59 do 85 m2 - Ogrody do 456 m2 - 3 typy lokali Przedstawiamy trzy typy lokali w Novym Piasecznie. Każdy z nich jest wyjątkowy, ale też funkcjonalny i komfortowy. L To doskonały wybór dla osób poszukujących przestronnych wnętrz w wysokim standardzie. Na parterze znajduje się przestronny salon z nowoczesnym aneksem kuchennym, wiatrołap z miejscem na szafę, toaleta oraz praktyczne pomieszczenie gospodarcze. Piętro domu to komfortowa przestrzeń z 3 sypialniami (jedna w opcji master bedroom) oraz elegancką łazienką z wygodną wanną. Dodatkowo, kominek wniesie ciepły klimat do Twojego domu, a system klimatyzacji schłodzi go w upalne dni. Nie tylko wnętrze robi wrażenie – do dyspozycji mieszkańców jest także ogród o powierzchni od: 122m2 do 245m2. Nie zwlekaj i umów się na spotkanie z naszym działem sprzedaży. Dom L został zaplanowany z myślą o zapewnieniu niezależności w otoczeniu natury! Wyobraź sobie relaksujące wieczory przy kominku, spędzane w gronie najbliższych. Wszystko to dostępne jest w atrakcyjnej cenie i może stać się Twoje. Nie przegap tej okazji – umów się na spotkanie z naszym działem sprzedaży już dziś! M Dom typu M znajduje się na pierwszym piętrze budynku wolnostojącego. Do mieszkania prowadzi indywidualna, wewnętrzna klatka schodowa. Dom posiada ogród o pow. od 56m2 do 71m2. Dom jest niezwykle praktyczny i funkcjonalny, spełniający oczekiwania zarówno Rodzin, jak i Singli. W domu znajduje się otwarta przestrzeń dzienna, obejmująca przestronny salon oraz kuchnię z miejscem na duży stół, idealny dla całej rodziny lub spotkań z przyjaciółmi, ergonomiczna łazienka z miejscem dużą wannę oraz praktyczny schowek. W drugiej części domu znajdują się dwie sypialnie. Jedna z nich jest typu master bedroom z prywatna garderobą. Wyobraź sobie chłodne wieczory spędzone w gronie najbliższych przy kominku lub upalne dni w chłodzie klimatyzacji. Oba rozwiązania gwarantujemy w standardzie. To wszystko dostępne jest w atrakcyjnej cenie i może stać się Twoje. M+ Dom M+ ma wiele atutów. Przede wszystkim otwarta przestrzeń dzienna, z widokiem na bardzo duży ogród o pow. od 242m2 do 331m2 i bezpośrednim dostępem do niego, zapewniająca możliwość cieszenia się życiem z dala od miejskiego zgiełku. To miejsce, które może spełnić marzenia zarówno Rodzin jak i Singli. Stwórz wyjątkowy klimat i atmosferę w domu wyposażonym zarówno w kominek jak i klimatyzację. Dom usytuowany jest na parterze budynku wolnostojącego. Oferuje przestronny salon połączony z funkcjonalnym aneksem kuchennym, 2 sypialnie, wygodną łazienkę, funkcjonalny schowek oraz wiatrołap z miejscem na szafę. To wszystko tworzy kompaktową przestrzeń, która może stać się Twoja! To miejsce, które pokochasz. Lokalizacja Inwestycja położona jest w Chylicach Pólko w zielonej części Gminy Piaseczno, w sąsiedztwie Konstancina – Jeziornej oraz Józefosławia, w niedalekiej odległości od Warszawy. Dzięki tej lokalizacji Nove Piaseczno pozwala doświadczyć uroku życia z dala od zgiełku miasta zapewniając wymarzony spokój i bezpieczeństwo, nie rezygnując z miejskich udogodnień. Osiedle pozostaje doskonale skomunikowane z Warszawą.
Dostępne domy w tej inwestycji
| Nazwa | Rzut | Pokoje | Powierzchnia | Piętra | Cena | Status |