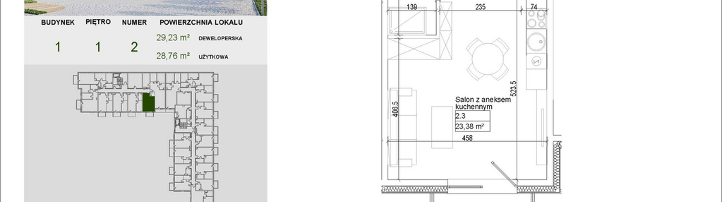
Nowe mieszkanie na sprzedaż 1 pokój Osielsko, 28,76 m2, 1 piętro - nr A2
Oferta sprzedaży od Grupa Moderator
bydgoski, Osielsko, Al. A. Mickiewicza

Główne cechy mieszkania
Ważne informacje
Mieszkanie 1 pokojowe
Inwestycja
Aleja Mickiewicza
kujawsko-pomorskie, bydgoski, Osielsko
W pierwszym etapie oddajemy kameralny, trzypiętrowy budynek, w którym znajdzie się 66 mieszkań – od ustawnych kawalerek, idealnych na start lub pod pewną inwestycję, po przestronne, 4-pokojowe lokale dla rodziny. Stawiamy na nowoczesną, funkcjonalną architekturę i inteligentne rozwiązania. Dla pełnej wygody mieszkańców, na poziomie 0 zaprojektowaliśmy halę garażową. To nie tylko mury. To nowa energia i inteligentny wybór. Projekt został zaplanowany etapowo, a w przyszłości dopełni go drugi budynek, tworząc spójną i kompletną całość. "Inteligentny wybór" to dla nas także przemyślana struktura metraży. Świadomie odpowiadamy na potrzeby rynku, oferując zarówno poszukiwane mieszkania inwestycyjne, jak i komfortowe mieszkania dla rodzin. Ta elastyczność sprawia, że Aleja Mickiewicza to bezpieczna decyzja – niezależnie od tego, czy kupujesz swoje pierwsze „M”, czy dywersyfikujesz portfel. Kolejny etap inwestycji tylko potwierdzi wartość tej lokalizacji, budując spójne, kompletne i tętniące życiem osiedle.
Dostępne mieszkania w tej inwestycji
| Nazwa | Rzut | Pokoje | Powierzchnia | Piętro | Cena | Status |