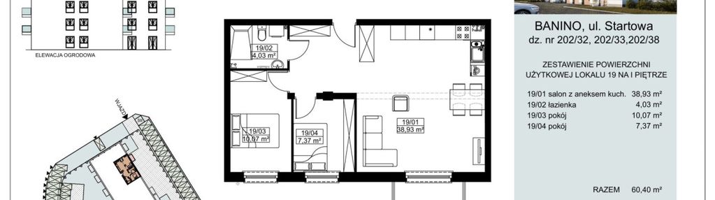
Mieszkanie na sprzedaż 2 pokoje Banino, 60,40 m2, 1 piętro
Oferta sprzedaży od Partnerzy Nieruchomości
kartuski, Banino, ul. Startowa
567 760 zł
9 400 zł/m2

Główne cechy mieszkania
Opis nieruchomości o powierzchni 60,40 m2
Ostatnie mieszkania baniono/ deweloper/ centrum
Mieszkanie nr19 60,4 m2 z BALKONEM (3,9M2) OD DEWELOPERA
znajduje sie na parterze i składa się:
- salon z aneksem kuchennym
- łazienka
- pokój
- pokój
- balkon
- miejsce parkingowe
Mieszkania znajdują się w nowo powstającym budynku trzykondygnacyjnym z windą w skład którego wchodzą 33 mieszkania (od 25m2 do 60m2), 6 garaży,
-Budynek ogrzewany gazowo, pełna własność
- wysokość mieszkań 270cm.
Budynek wykonany będzie z wysokiej jakości materiałów. Mieszkania bardzo dobrze doświetlone. Droga dojazdowa zostanie utwardzona.
Budowa i cała transakcja zabezpieczona rachunkiem powierniczym
LOKALIZACJ:
Budynek jest zlokalizowany przy ulicy Startowej w Baninie. Jest to centrum Banina,
- w którym znajdują centralny punk Handlowy ( markety, apteki, usługi, gastronomia)
- przystanek autobusowy 7min
- szkoła, boisko 8min
- ośrodek zdrowia, poczta.
Banino jest bardzo dobrze skomunikowane z Trójmiastem. W niedalekiej przyszłości przez Banino przebiegać będzie nowa obwodnica metropolii trójmiejskiej.
KUPUJĄCY NIE PŁACI PROWIZJI DLA BIURA!
PLANOWANA REALIZACJA INWESTYCJI 2026 R. IV KWARTAŁ
KUPUJĄCY NIE PŁACI 2% PCC.
Posiadamy w sprzedaży inne mieszkania
Możliwość dokupienia garażu i dodatkowego miejsca parkingowego.
ZADZWOŃ I DOWIEDZ SIĘ WIĘCEJ !!!
KUP Z NAMI - KORZYSTNIE I BEZPIECZNIE!
- 0% prowizji od Kupującego (dotyczy ofert oznaczonych znaczkiem KUP bez prowizji) i żadnych dodatkowych lub ukrytych kosztów
- gwarantujemy bezpieczny zakup i najlepszą cenę
- oferujemy skuteczną i bezpłatną pomoc w uzyskaniu kredytu
- zapewniamy fachowe doradztwo przy zakupie pod inwestycję