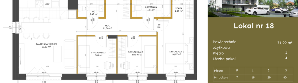
Nowe mieszkanie na sprzedaż 4 pokoje Błonie, 71,99 m2, 1 piętro - nr 18
Oferta sprzedaży od VFM Real Estate
Błonie, ul. 3 Maja 15

Główne cechy mieszkania
Ważne informacje
Mieszkanie 4 pokojowe
Dodatkowe informacje
Udogodnienia

Winda

Rowerownia
Inwestycja
Apartamenty 3 Maja
mazowieckie, warszawski zachodni, Błonie
Kameralny apartamentowiec w ścisłym centrum Błonia Inwestycja Apartamenty 3 maja to projekt mieszkaniowy, który ucieszy fanów kameralnych, niskich zabudowań o podwyższonym standardzie wykończenia. Projekt zakłada realizację jednego budynku wielorodzinnego w centrum podwarszawskiego Błonia, z doskonałym dostępem do pobliskiej infrastruktury. W inwestycji znajdą się 43 mieszkania 2-, 3- oraz 4-pokojowe. Metraż największych apartamentów wyniesie ponad 71 mkw.
Dostępne mieszkania w tej inwestycji
| Nazwa | Rzut | Pokoje | Powierzchnia | Piętro | Cena | Status |